Nazwa obiektu: PROJEKT BUDYNKU LETNISKOWEGO- REKREACJI INDYWIDUALNEJ PRZY UL.GRZYBOWEJ 1 W SASINIE- ZIELONKA , GMINA CHOCZEWO
Lokalizacja obiektu : Sasino-Zielonka , gmina Choczewo ,Powiat Wejherowski, Województwo Pomorskie, budynek zaprojektowany na dwóch działkach z dwoma wydzielonymi wjazdami , na każdej jeden . budynek podłączony do zamkniętego zbiornika na nieczystości ciekłe i do studni wodociągowej z pompą .Teren inwestycji oddzielony ogrodzeniem projektowanym. W latach 2011- 2012 w związku z realizacją na terenie miejscowości sieci wodociągowej , został zaprojektowany i zrealizowany projekt przyłączy do sieci wodociągowej z dwoma studniami wodomierzowymi
Rok powstania dokumentacji: 2003-2004 oraz w 2011-2012
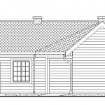
Cechy charakterystyczne zabudowy: Budynek rekreacji indywidualnej- letniskowy , parterowy z poddaszem użytkowym , bez podpiwniczenia . Obiekt w formie zabudowy bliźniaczej ze strefą wejściową w formie wnęki tarasowej zadaszonej w centralnej części elewacji frontowej . Bryła w rzucie przypominająca prostokąt , przekryta dachem dwuspadowym pokrytym blachodachówką .Budynek drewniany szkieletowy (ryglowy).
Etap realizacji opracowania : wykonany projekt budowlany , który uzyskał pozwolenie na budowę oraz realizacja według projektu oraz uzyskanie pozwolenia na użytkowanie.
Nazwa obiektu: PROJEKT BUDOWLANY ORAZ INWENTARYZACJA POWYKONAWCZA W RAMACH DOKUMENTACJI ZAMIENNEJ ISTNIEJĄCEGO BUDYNKU LETNISKOWEGO W RUKŁAWKACH, DZ. NR 197/7, GMINA BISKUPIEC.
Lokalizacja obiektu : Działka znajduje się w Rukławkach, gmina Biskupiec w zespole działek przeznaczonych w planie miejscowym pod zabudowę jednorodną letniskową. Działki sąsiednie są zabudowane budynkami letniskowymi. Zespół działek przeznaczonych pod zabudowę letniskową posiada sieci wodociągową i kanalizacji sanitarnej i sieć energoelektryczną kablową. Na działkę wykonano dojazd drogą gruntową, nieutwardzoną z drogi istniejącej asfaltowej.
Na działce wykonano budynek letniskowy. Ścieki sanitarno- bytowe odprowadzane są do istniejącej sieci kanalizacji wiejskiej. Woda doprowadzona jest z istniejącej sieci wodociągowej. Energia elektryczna doprowadzona z przyłącza kablowego. Budynek nie jest ogrzewany, ponieważ spełnia funkcję budynku letniskowego- sezonowego, użytkowanego w miesiącach: od czerwca do września. Na działce ustawiono typowe pojemniki na odpady stałe. Teren działki jest ogrodzony ogrodzeniem z żerdzi drewnianych. Teren działki jest zagospodarowany drogą dojazdową, dojściami, trawnikami, drzewami i krzewami ozdobnymi, oraz owocowymi.
Rok powstania dokumentacji: 2006-PROJEKT BUDOWLANY i 2014-DOKUMENTACJA POWYKONAWCZA ZAMIENNA
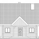
Cechy charakterystyczne zabudowy:Domek letniskowy w kształcie prostokąta, parterowy, niepodpiwniczony, z dachem wysokim i poddaszem użytkowym. Dach kryty blachodachówką w kolorze czerwonym. Budynek drewniany szkieletowy (ryglowy). Na całej szerokości fasady szczytowej wykonano taras.
Etap realizacji opracowania : projekt budowlany z pozwoleniem na budowę i realizacja obiektu z projektem zamiennym oraz uzyskanym pozwoleniem na użytkowanie.
- Rysunek elewacji frontowej
- Forma wizualna obiektu
- Forma wizualna obiektu
- Wygląd po realizacji
- Wygląd po realizacji
Nazwa obiektu: BUDYNEK MIESZKALNY JEDNORODZINNY I GOSPODARCZY W ZABUDOWIE ZAGRODOWEJ W RADOSTOWIE NA DZIAŁCE NR 14/8 , GMINA JEZIORANY.
Lokalizacja obiektów : Działka położona jest w obrębie Radostowo , gminie Jeziorany , powiecie Olsztyńskim, województwie Warmińsko-Mazurskim . Działka nie jest zabudowana . Ukształtowana podłużnie i „wyciągnięta” w kierunku zbliżonym do osi północ- południe. Od strony północnej graniczy z linią brzegową jeziora Blanki, od strony południowej zaś z drogą wewnętrzną na działce 14/22 – dojazdem do drogi publicznej.
W ramach zabudowy zagrodowej zaprojektowano budowę budynku mieszkalnego jednorodzinnego oraz budynku gospodarczego .Wszystkie obiekty w formie wolno stojącej. Budynek mieszkalny, usytuowany został, bardziej na północnej niż gospodarczy, z zachowaniem odległości od linii zagospodarowania w stosunku do jeziora Blanki . Projektowany w kształcie zbliżonym do prostokąta , dłuższy fasadami- frontową i tylną na osi wschód – zachód .Strefa wejściowa tego budynku znajduje się na fasadzie południowej działki, z widokiem na zjazd z drogi wewnętrznej – działki 14/22 .Budynek gospodarczy przewidziany w kształcie litery „L” , zwróconej jednym ramieniem na północ a drugim na wschód .strefa wejściowa w postaci dwóch wejść zlokalizowana została na fasadzie wschodniej i północnej i zwrócona w kierunku południowo zachodniego narożnika budynku mieszkalnego.
Rok powstania dokumentacji: 2010 -PROJEKT BUDOWLANY
Cechy charakterystyczne zabudowy: Budynek mieszkalny jednorodzinny o powierzchni zabudowy 114,40m2, parterowy z poddaszem użytkowym , nie podpiwniczony, oraz parterowy budynek gospodarczy o powierzchni zabudowy 77,81m2
Etap realizacji opracowania : projekt budowlany z pozwoleniem na budowę i realizacja obiektu
- Lokalizacja obiektów
- Rysunek elewacji frontowej- bud. mieszkalny
- Rysunek elewacji tarasowej- bud. mieszkalny
- Rysunek elewacji – bud. gospodarczy
- Rysunek elewacji- bud. gospodarczy
- Wygląd po realizacji- bud. mieszkalny
- Wygląd po realizacji- bud. mieszkalny
- Wygląd po realizacji- bud. gospodarczy
Nazwa obiektu: BUDYNEK MIESZKALNY JEDNORODZINNY ORAZ BUDYNEK GOSPODARCZY W ZABUDOWIE ZAGRODOWEJ, DZ.NR 286/25, 11-300 BISKUPIEC
Lokalizacja obiektów : Działka położona jest w obrębie miasta Biskupiec, gmina Biskupiec, powiat Olsztyński, województwo Warmińsko- Mazurskie. Ukształtowana podłużnie i „wyciągnięta” w kierunku zbliżonym do osi północ- południe. Od strony północnej graniczy z komunikacją wewnętrzną na działce nr 286/29, zapewniającą dostęp do drogi publicznej. Od strony południowej, wschodniej i od strony zachodniej graniczy z kolejnymi działkami.
W ramach zabudowy zagrodowej zaprojektowano budynek mieszkalny jednorodzinny, oraz budynek gospodarczy. Oba obiekty w formie wolno stojącej. Budynek mieszkalny, usytuowany został w centralnej części działki. Budynek gospodarczy, w części północno- wschodniej. Kształt budynku mieszkalnego w widoku z góry przypominający prostokąt na osi północ-południe, z elementem wysuniętym w środkowej części fasady wschodniej.Budynek gospodarczy przewidziany w kształcie prostokąta. Strefa wejściowa w postaci dwóch wejść zlokalizowana została na fasadzie południowej i zwrócona w kierunku północno-wschodniego narożnika budynku mieszkalnego.
Rok powstania dokumentacji: 2012 -PROJEKT BUDOWLANY
Cechy charakterystyczne zabudowy: Budynek mieszkalny jednorodzinny o powierzchni zabudowy 226,61m2, parterowy z poddaszem nieużytkowym- strychem, niepodpiwniczony, oraz parterowy budynek gospodarczy o powierzchni zabudowy 51,03m2
Etap realizacji opracowania : projekt budowlany z pozwoleniem na budowę , obiekt w realizacji
- Lokalizacja obiektów
- Projekt kolorystyki elewacji-bud. mieszkalny
- Projekt kolorystyki elewacji-bud. mieszkalny
- Projekt kolorystyki elewacji-bud. mieszkalny
- Projekt kolorystyki elewacji-bud. gospodarczy
Nazwa obiektu: BUDYNEK MIESZKALNY JEDNORODZINNY – PEŁNIĄCY FUNKCJĘ LETNISKOWEGO
W MIEJSCOWOŚCI POTRYTY, DZ. NR 1/5, OBRĘB 23, GMINA JEZIORANY.
Lokalizacja obiektu : Działka nr.1/5 znajduje się w obrębie zabudowy mieszkaniowej, ukształtowana podłużnie i „wyciągnięta” w kierunku zbliżonym do osi wschód-zachód. W strony północnej, południowej i zachodniej występują kolejne działki. Od strony wschodniej zaś działka graniczy z drogą wewnętrzną gruntową stanowiącą dojazd do drogi publicznej.
Budynek w intencji inwestora ma być użytkowany jak dom letniskowy, ostatecznie zaprojektowany został jako mieszkalny jednorodzinny ze względu na wymogi lokalizacyjne określone w decyzji o warunkach zabudowy . Budynek zaplanowano jako bryłę zbliżoną w kształcie do prostokąta, zorientowaną krótszymi bokami w kierunku zbliżonym do osi północ-południe, a bokami dłuższymi w kierunku zbliżonym do osi wschód-zachód. Główne wejście do budynku odbywać się będzie poprzez schody, a następnie wejście do przedsionka w fasadzie wschodniej od zewnętrznej strony działki. W projekcie przewidziano także taras ziemny na elewacji tylnej (zachodniej).
Rok powstania dokumentacji: 2013 -PROJEKT BUDOWLANY
Cechy charakterystyczne zabudowy: Budynek mieszkalny jednorodzinny o powierzchni zabudowy 91,63m2, przewidziany do realizacji w technologii tradycyjnej drewnianej. Kształt budynku w widoku z góry przypominający prostokąt. Budynek parterowy z poddaszem użytkowym, niepodpiwniczony, projektowany z dachem wysokim dwuspadowym o kącie 45º, krytym dachówką ceramiczną „esówką” i zadaszonym dwuspadowo nad wejściem głównym, oraz tarasem na słupach.
Etap realizacji opracowania : projekt budowlany z pozwoleniem na budowę , obiekt w realizacji
- Rysunek elewacji
- Projekt kolorystyki elewacji frontowej
- Projekt kolorystyki elewacji tarasowej
- Forma wizualna obiektu
- Forma wizualna obiektu
- Forma wizualna obiektu
- Forma wizualna obiektu
- Forma wizualna obiektu-2 wersja kolor.
- Forma wizualna obiektu-2 wersja kolor.
- Forma wizualna obiektu-2 wersja kolor.
- Forma wizualna obiektu-2 wersja kolor.
Nazwa obiektu: BUDYNEK MIESZKALNY JEDNORODZINNY ORAZ BUDYNEK GOSPODARCZY W ZABUDOWIE ZAGRODOWEJ POWIELONY NA DZIAŁCE 48/23 i 28/24 W POTRYTACH ,GM.JEZIORANY
Lokalizacja obiektów : Działki położone są w Potrytach, gmina Jeziorany, powiat Olsztyński, województwo Warmińsko- Mazurskie . Ukształtowane podłużnie i „wyciągnięte” w kierunku zbliżonym do osi północ- południe. Od strony południowej graniczą z drogą gruntową na działce nr 47, zapewniającą dostęp do drogi publicznej. Od strony wschodniej i zachodniej graniczą z kolejnymi działkami.
W ramach opracowania na każdej z działek zaprojektowano budynek mieszkalny jednorodzinny, oraz budynek gospodarczy. Oba obiekty w formie wolno stojącej. Budynek mieszkalny, usytuowany został bliżej południowej granicy działki. Budynek gospodarczy, usytuowano w głębi działki, po przekątnej- w stosunku do budynku mieszkalnego. Kształt budynku mieszkalnego w widoku z góry przypominający prostokąt na osi północ-południe, z elementem wysuniętym- przedsionkiem- główną strefą wejściową usytuowaną na fasadzie południowej. Drugie wejście do budynku- od strony podcienia tarasowego zlokalizowano na fasadzie zachodniej. Budynek gospodarczy również zaprojektowany w kształcie prostokąta. Strefa wejściowa w postaci dwóch wejść zlokalizowana została na fasadzie południowej (wejście główne) i wschodniej (drzwi dwuskrzydłowe) budynku.
Rok powstania dokumentacji: 2013-2014 -PROJEKT BUDOWLANY
Cechy charakterystyczne zabudowy: Budynek mieszkalny jednorodzinny o powierzchni zabudowy 90,71m2, przewidziany do realizacji w technologii tradycyjnej drewnianej. Kształt budynku w widoku z góry przypominający prostokąt na osi północ-południe, z elementem wysuniętym- przedsionkiem- główną strefą wejściową usytuowaną na fasadzie południowej. Drugie wejście do budynku- od strony podcienia tarasowego zlokalizowano na fasadzie zachodniej. Budynek parterowy z poddaszem użytkowym, niepodpiwniczony, projektowany z dachem wysokim dwuspadowym o kącie 45º, krytym blachodachówką, oraz z tarasem z zadaszeniem na słupach. Budynek gospodarczy parterowy niepodpiwniczony o powierzchni zabudowy 58,74m2 , z dachem wysokim pochyleniu połaci 45º, projektowany w kształcie prostokąta z tarasem z zadaszeniem na słupach.
Etap realizacji opracowania : projekt budowlany z pozwoleniem na budowę , obiekt w realizacji
- Lokalizacja obiektów
- Rysunek elewacji- bud. mieszkalny
- Rysunek elewacji- bud. mieszkalny
- Rysunek elewacji- bud. gospodarczy
- Rysunek elewacji- bud. gospodarczy
Nazwa obiektu: BUDOWA BUDYNKU MIESZKALNEGO JEDNORODZINNEGO I BUDYNKUGOSPODARCZO-GARAŻOWEGO Z WIATĄ I KOTŁOWNIĄ W FORMIE ZABUDOWY ZAGRODOWEJ NA DZ. NR 27/3 W OBRĘBIE ADAMOWO
Lokalizacja obiektu : Kształtem działka 27/3 zbliżona jest do trapezu, podstawa w kierunku do osi południowo-wschodniej występuje droga Wojewódzka. Od strony północno-wschodniej i zachodnią , znajduje się działka 27/2, obecnego inwestora . Od strony wschodniej , działka graniczy z lasem .
Zabudowa działki składa się z budynku mieszkalnego jednorodzinnego i budynku gospodarczo= garażowego z kotłownią . Budynek mieszkalny jednorodzinny zaprojektowano, jako bryłę w kształcie dwóch prostopadłościanów , z dachami wysokimi , nawzajem przenikających się . Główne wejście do budynku znajduje się na fasadzie frontowej południowo-wschodniej skierowanej do drogi Wojewódzkiej . Wyjście na taras zaprojektowano z pokoju dziennego z wysuniętego wykusza od strony zachodnio-południowej . Budynek gospodarczo-garażowy z wiatą i kotłownią usytuowano prostopadle do elewacji frontowej budynku mieszkalnego jednorodzinnego . Budynek zaprojektowano jako bryłę jednego prostopadłościanu z dachem wysokim . Dach zaprojektowano jako wielospadowy . Wjazd do garażu występuje od strony budynku mieszkalnego zachodnio-południowej . Wejście do kotłowni od strony północno-zachodniej czyli bocznej do budynku.
Rok powstania dokumentacji: 2015 -PROJEKT BUDOWLANY
Cechy charakterystyczne zabudowy: Budynek mieszkalny jednorodzinny o powierzchni zabudowy 334,09 m2, przewidziany do realizacji w technologii tradycyjnej. Kształt budynku w widoku z góry przypominający dwa przecinające się prostokąty . Budynek niepodpiwniczony , parterowy z poddaszem nieużytkowym . Budynek projektowany z dachem wysokim dwuspadowym o kącie 35º, krytym dachówką ceramiczną „esówką”. Budynek gospodarczo-garażowy z wiatą i kotłownią o powierzchni zabudowy 111,23 m2, przewidziany do realizacji w technologii tradycyjnej. Kształt budynku w widoku z góry jako prostokątny . Budynek niepodpiwniczony , parterowy z poddaszem nieużytkowym . Budynek projektowany z dachem wysokim dwuspadowym o kącie 35º, krytym dachówką ceramiczną „esówką”.
Etap realizacji opracowania : projekt budowlany z pozwoleniem na budowę
- Lokalizacja obiektów
- Projekt kolorystyki elewacji-bud. mieszkalny
- Projekt kolorystyki elewacji-bud. mieszkalny
- Projekt kolorystyki elewacji-bud. mieszkalny
- Projekt kolorystyki elewacji-bud. mieszkalny
- Rysunki elewacji- bud. gospodarczy
Nazwa obiektu: BUDYNEK MIESZKALNY JEDNORODZINNY WOLNOSTOJĄCY NA PODSTAWIE ADAPTACJI PROJEKTU GOTOWEGO , BUDYNEK HANGARU NA ŁODZIE WRAZ Z CZĘŚCIĄ GARAŻOWĄ ORAZ PODZIEMNY BUDYNEK GOSPODARCZY W FORMIE ZABUDOWY ZAGRODOWEJ NA DZIAŁCE NR 257 , OBRĘB NAJDYMOWO
Lokalizacja obiektu : Teren działki 257 wydzielony z przeznaczeniem pod zabudowę zagrodową. Kształtem działka wyciągnięta w kierunku osi północ- południe. Wzdłuż granicy południowo-zachodniej działka graniczy z drogą Powiatową nr. 1491N – Najdymowo- Reszel. Od strony północno- wschodniej, północno- wschodniej i południowo- zachodniej działka graniczy innymi działkami . Na terenie pobliskim inwestycji znajdują się obiekty w zabudowie zagrodowej. Na działce istnieje obecnie dość zróżnicowany wysokość terenu, oraz porosty traw i zieleń niska .
Budynek mieszkalny jednorodzinny zaprojektowano, jako zwartą bryłę w kształcie przypominającym w rzucie literę „t” – składający się z dwóch prostopadłościennych brył , z dachami wysokimi , nawzajem przenikających się . Główne wejście do budynku znajduje się na fasadzie frontowej zachodniej skierowanej do drogi Powiatowej . W projekcie przewidziano wykonanie tarasu ziemnego wzdłuż elewacji południowej.
Budynek – hangar na łodzie z garażem usytuowano prostopadle do elewacji frontowej budynku mieszkalnego jednorodzinnego, w ten sposób by wizualnie zamykał on wewnętrzne podwórze zabudowy zagrodowej . Budynek zaprojektowano jako bryłę jednego prostopadłościanu z dachem wysokim . Dach zaprojektowano jako dwuspadowy . Wjazdy i wejścia do budynku – w tym do garażu zlokalizowano od strony południowej .
Budynek gospodarczy podziemny – zagłębiony , przeznaczony na przechowanie rzeczy wymagających niższych temperatur . Obiekt nawiązuje do tradycyjnej na tym terenie formy zabudowy- tzw. ziemianki . Budynek usytuowano prostopadle do elewacji frontowej budynku mieszkalnego jednorodzinnego, w nieco dalszej odległości od wyżej wymienionych obiektów zabudowy . Budynek zaprojektowano jako bryłę jednego prostopadłościanu ze stropodachem „odwróconym” . Dach zaprojektowano jako dwuspadowy . Wejście do budynku zlokalizowano od strony zachodniej .
Rok powstania dokumentacji: 2015 -PROJEKT BUDOWLANY
Cechy charakterystyczne zabudowy: Budynek mieszkalny jednorodzinny o powierzchni zabudowy 211,80m2 , parterowy, niepodpiwniczony z poddaszem nieużytkowym , przekryty dachem dwuspadowym , hangar na ładzie , parterowy , niepodpiwniczony z dachem dwuspadowym wraz z częścią garażową o pow. zabudowy 146,50m2, oraz podziemny, jednokondygnacyjny, w całości zagłębiony budynek gospodarczy o pow. zabudowy 61,00m2
Etap realizacji opracowania : projekt budowlany z pozwoleniem na budowę , obiekt w realizacji
- Lokalizacja obiektów
- Przekrój bud. gospodarczego
- Przekrój bud. gospodarczego
- Rysunek elewacji- bud. gospodarczy
- Rysunek elewacji- bud. gospodarczy
Nazwa obiektu: BUDYNEK MIESZKALNY JEDNORODZINNY ORAZ BUDYNEK GOSPODARCZO-GARAŻOWY W FORMIE ZABUDOWY ZAGRODOWEJ NA DZIAŁCE 5/12, OBRĘB BOTOWO ,GM.JEZIORANY
Lokalizacja obiektu : Teren działki nr 5/12 z przeznaczeniem pod zabudowę zagrodową . Działka od strony wschodniej graniczy z drogą gminną . Teren działki charakteryzuje się sporym zadrzewieniem , jednak nie w obszarze przeznaczonym pod inwestycję. Sieć wodociągowa przebiega równolegle do drogi gminnej.
Zabudowa działki w projekcie składa się z budynku mieszkalnego i gospodarczego . Budynek mieszkalny jednorodzinny zaprojektowano, jako bryłę w kształcie zbliżonym do prostokąta z niewielkim wysunięciem z strefie wejściowej, z dachem wysokim , dwuspadowym i lukarną nad strefą wejściową . Główne wejście do budynku znajduje się na fasadzie frontowej południowo-wschodniej skierowanej do drogi gminnej . Wyjścia na taras zaprojektowano z pokoju dziennego od strony północno i południowo zachodniej.
Budynek gospodarczo-garażowy z wiatą usytuowano prostopadle do elewacji frontowej budynku mieszkalnego jednorodzinnego . Budynek zaprojektowano jako bryłę w kształcie zbliżonym do prostokąta . Dach zaprojektowano jako dwuspadowy . Wjazd do garażu przewidziano na elewacji frontowej od strony południowo- wschodniej . Wejście do pomieszczenia gospodarczego od strony elewacji północno-wschodniej czyli bocznej. Wiata przy budynku usytuowana jest od strony północno-zachodniej . Budynek przewidziano do realizacji jako parterowy , niepodpiwniczony z dachem wysokim dwuspadowym i poddaszem nieużytkowym .
Rok powstania dokumentacji: 2016 -PROJEKT BUDOWLANY
Cechy charakterystyczne zabudowy: Budynek mieszkalny jednorodzinny o powierzchni zabudowy 170,10 m2 , parterowy z poddaszem nieużytkowym i nie podpiwniczony, budynek gospodarczo-garażowy z wiatą o powierzchni zabudowy 49,50 m2, parterowy z poddaszem nieużytkowym.
Etap realizacji opracowania : projekt budowlany z pozwoleniem na budowę
- Lokalizacja obiektów
- Projekt kolorystyki elewacji- bud. mieszkalny
- Projekt kolorystyki elewacji- bud. mieszkalny
- Projekt kolorystyki elewacji- bud. mieszkalny
- Projekt kolorystyki elewacji- bud. mieszkalny
- Rysunek elewacji- bud. gospodarczy



















































