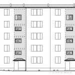
Nazwa obiektu/projektu: PROJEKT BUDOWLANY WYMIANY LUXFERÓW NA STOLARKĘ OKIENNĄ I PRZEBUDOWY DASZKÓW NAD WEJŚCIAMI DO BUDYNKU PRZY ULICY ŻEROMSKIEGO 16/17
Lokalizacja obiektu : Budynek podlegający opracowaniu zlokalizowany w Olsztynie , usytuowany jest dłuższą ścianą równolegle do osi ulicy Żeromskiego . Wejścia do budynku ,podobnie jak ścianki z luxferów znajdują się na wschodniej, dłuższej fasadzie budynku.
Rok powstania dokumentacji: 2008
Cechy charakterystyczne zabudowy: Budynek wolnostojący , 5- cio kondygnacyjny , całkowicie podpiwniczony ,2-klatkowy ,wykonany w systemie tradycyjnym murowanym. Podzielony pod względem funkcjonalnym na 5 wydzielonych lokali mieszkalnych , po 2 i 3 z klatki(2xM4, 2xM3 i 1M2).Z trzech stron wykonano termomodernizację budynku. Elewacja frontowa niedocieplona, przewidziana do ocieplenia.
Etap realizacji opracowania : uzyskane pozwolenie na budowę i realizacja projektu
- Wygląd przed realizacją
- Wygląd przed realizacją
- Rysunek elewacji
- Wygląd po realizacji
- Wygląd po realizacji
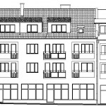
Nazwa obiektu/projektu: PROJEKT BUDOWLANY REMONTU I KOLORYSTYKI FASADY FRONTOWEJ BUDYNKU MIESZKALNEGO WIELORODZINNEGO PRZY UL.KOŚCIUSZKI 73 W OLSZTYNIE
Lokalizacja obiektu : Przedmiotem opracowania jest remont i kolorystyka fasady frontowej budynku mieszkalnego wielorodzinnego stanowiącego zwartą zabudowę istniejącej pierzei przy ul. Kościuszki .Fasada jest usytuowana w sąsiedztwie budynków stanowiących istotne elementy architektoniczne miasta takie jak Budynek Urzędu Marszałkowskiego lub budynku Zakładu Energetycznego.
Rok powstania dokumentacji: 2008
Cechy charakterystyczne zabudowy: Budynek wolnostojący , 5- cio kondygnacyjny , całkowicie podpiwniczony ,1-klatkowy ,wykonany w systemie tradycyjnym murowanym, zwieńczony dachem dwuspadowym .Projektowana kolorystyka i remont ma przede wszystkim na celu wyodrębnienie i podkreślenie istniejących podziałów elewacyjnych , oraz konserwację elementów ozdobnych takich jak balustrady czy gzyms .
Etap realizacji opracowania : uzyskane pozwolenie na budowę i realizacja projektu
- Wygląd przed realizacją
- Wygląd przed realizacją
- Projekt kolorystyki elewacji
- Wygląd po realizacji
- Wygląd po realizacji
Nazwa obiektu/projektu: PROJEKT BUDOWLANY DOCIEPLENIA I KOLORYSTYKI 2 FASADY BUDYNKU MIESZKALNEGO WIELORODZINNEGO PRZY UL.KOŚCIUSZKI 73 W OLSZTYNIE -2 etap realizacji dokumentacji projektowej
Lokalizacja obiektu : Przedmiotem opracowania jest docieplenie i kolorystyka fasady frontowej budynku mieszkalnego wielorodzinnego stanowiącego zwartą zabudowę istniejącej pierzei przy ul. Kościuszki
Rok powstania dokumentacji: 2014
Cechy charakterystyczne zabudowy: Zgodnie z opisem zamieszczonym przy 1 etapie realizacji dokumentacji projektowej
Etap realizacji opracowania : uzyskane pozwolenie na budowę i realizacja projektu
- Wygląd przed realizacją
- Wygląd przed realizacją
- Projekt kolorystyki elewacji
- Wygląd po realizacji
- Wygląd po realizacji
- Wygląd po realizacji
- Wygląd po realizacji
Nazwa obiektu/projektu: PROJEKT BUDOWLANY REMONTU I KOLORYSTYKI ELEWACJI BUDYNKU WIELORODZINNEGO W BISKUPCU PRZY UL. NIEPODLEGŁOŚCI 13
Lokalizacja obiektu : Budynek mieszkalny wielorodzinny z formie kamienicy, zlokalizowany w Biskupcu przy ul. Niepodległości, w bliskim sąsiedztwie budynku banku PKO, Urzędu Miejskiego czy Biblioteki Miejskiej. Budynek znajduje się na terenie oznaczonym w Miejscowym Planie Zagospodarowania symbolem „MWU-2”, czyli zabudowy mieszkaniowej wielorodzinnej z usługami nieuciążliwymi. Dodatkowo w Miejscowym Planie Zagospodarowania budynek został „objęty” obszarem strefy „B” ochrony konserwatorskiej- ochrony układów przestrzennych.
Rok powstania dokumentacji: 2012
Cechy charakterystyczne zabudowy: Przedmiotowy budynek został zrealizowany jako zwarta, „kubiczna” bryła, z częścią parterową dobudowaną od podwórza. W swej formie budynek nawiązuje do zabudowy mieszkaniowej- kamienicznej tego regionu, jednak wzbogaconej o rozbudowany, charakterystyczny detal architektoniczny. Elewacje budynku w podziałach pionowych symetryczne, z tego frontowa przedzielona strefą wejściową z drzwiami zewnętrznymi, na dwie wizualne części o podobnych proporcjach, zdobiona z rozmachem dekoracyjnymi elementami sztukatorskimi.
Etap realizacji opracowania : projekt przekazany inwestorowi , niezrealizowany
- Stan istniejący
- Projekt kolorystyki elewacji
Nazwa obiektu/projektu : PROJEKT BUDOWLANY REMONTU ELEWACJI BUDYNKU MIESZKALNEGO W BISKUPCU PRZY UL. B.CHOBREGO 12, DZ.NR 15/1
Lokalizacja obiektu : Budynek mieszkalny w formie kamienicy wolnostojącej, zlokalizowany w Biskupcu przy ul. Chrobrego, w bliskim sąsiedztwie przejazdu kolejowego. Budynek został ujęty w ewidencji zabytków prowadzonej na podstawie art.22 ustawy z dnia 23 lipca 2003r. o ochronie zabytków i opiece nad zabytkami
Rok powstania dokumentacji: 2013
Cechy charakterystyczne zabudowy: Bryłę budynku w rzucie przypominającą prostokąt, zrealizowano, jako obiekt trzykondygnacyjny w części nadziemnej, w tym dwie kondygnacje pełne i jedna poddaszowa– poddasze użytkowe, budynek jest podpiwniczony. Strefa wejściowa do budynku prowadzi od ul. Chrobrego. W budynku na parterze, piętrze i poddaszu zlokalizowano mieszkania, przedzielone w części centralnej korytarzem dostępem do klatki schodowej. Z korytarza na piętrze zapewniono dostęp na balkon widokowy, umieszczony centralnie nad wejściem głównym.
Etap realizacji opracowania : uzyskane pozwolenie na budowę i realizacja projektu
- Wygląd przed realizacją
- Wygląd przed realizacją
- Wygląd przed realizacją
- Projekt kolorystyki elewacji
- Projekt kolorystyki elewacji
- Wygląd po realizacji
- Wygląd po realizacji
- Wygląd po realizacji
PROJEKTY REMONTÓW, DOCIEPLEŃ I KOLORYSTYKI FASAD ZABUDOWY OTACZAJĄCEJ CENTRUM MIASTA – PLAC WOLNOŚCI W BISKUPCU
- Widok na kamienice Pl. Wolnosci 1, 2, 3
- Widok na kamienice Pl. Wolnosci 5a i 5b
- Widok na kamienice Pl. Wolnosci 8
- Widok na kamienice Pl. Wolnosci 1, 2, 3
- Widok na kamienice Pl. Wolnosci 5a ,5b i 5c
Nazwa obiektu/projektu : PROJEKT BUDOWLANY REMONTU I KOLORYSTYKI BUDYNKU MIESZKALNO-USŁUGOWEGO PRZY UL.PL.WOLNOŚCI 8
Lokalizacja obiektu : Budynek zlokalizowany w Biskupcu przy ul. Plac Wolności, w sąsiedztwie rzeki Dymer. Budynek znajduje się na terenie historycznego układu urbanistycznego obejmującego „Stare Miasto” Biskupca. Obiekt umiejscowiony w jednym z narożników zamykających pierzeję , ograniczających plac w centralnej części miasta
Rok powstania dokumentacji: 2007
Cechy charakterystyczne zabudowy: Budynek trzykondygnacyjny z poddaszem użytkowym ,podpiwniczony. Kształtowany jako narożny , przekryty dachem mansardowym z lukarnami oraz charakterystycznym wykuszem narożnym zwieńczonym wieżyczką.
Budynek zlokalizowany przy ul. Plac Wolności 8 w Biskupcu, znajduje się w obszarze objętym prawną ochroną konserwatorską w oparciu o art.7 pkt. 1 Ustawy z dnia 23 lipca 2003r. o ochronie zabytków i opiece nad zabytkami, oraz znajduje się na terenie historycznego układu urbanistycznego miasta Biskupca wpisanego do rejestru zabytków decyzją Wojewódzkiego Konserwatora Zabytków z dnia 14 grudnia 1957r, a także jest indywidualnie wpisany do w/w rejestru.
Etap realizacji opracowania : uzyskane pozwolenie Wojewódzkiego Konserwatora Zabytków, pozwolenie na budowę i realizacja projektu
- Wygląd po realizacji
- Wygląd po realizacji
- Wygląd po realizacji
Nazwa obiektu/projektu : PROJEKT BUDOWLANY REMONTU DOCIEPLENIA I KOLORYSTYKI ELEWACJI PÓŁNOCNO- WSCHODNIEJ OD UL.BOGUSŁAWSKIEGO BUDYNKU MIESZKALNEGO WIELORODZINNEGO W BISKUPCU PRZY UL. PLAC WOLNOŚCI 5D
oraz
INWENTARYZACJA ELEWACJI POŁUDNIOWO- ZACHODNIEJ OD PL.WOLNOŚCI BUDYNKU MIESZKALNEGO WIELORODZINNEGO W BISKUPCU PRZY UL. PLAC WOLNOŚCI 5D
Lokalizacja obiektu : Budynek mieszkalny wielorodzinny zlokalizowany na działce 213/6, jako kontynuacja zabudowy pierzejowej, zlokalizowany w Biskupcu przy ul. Plac Wolności, w sąsiedztwie rzeki Dymer. Budynek znajduje się na terenie historycznego układu urbanistycznego obejmującego „Stare Miasto” Biskupca.
Rok powstania dokumentacji: 2012
Cechy charakterystyczne zabudowy: Budynek w swej formie przestrzennej tworzy jedną zwartą bryłę zrealizowaną, jako czterokondygnacyjny obiekt w części nadziemnej, w tym trzy kondygnacje pełne i jedna poddaszowa– poddasze częściowo użytkowe, budynek jest podpiwniczony. Do budynku prowadzą dwie wydzielone strefy wejściowe od ul. Bogusławskiego: pierwsza- do części mieszkalnej, druga- do zaplecza lokali usługowych, oraz strefę wejściową do lokali usługowych od Pl. Wolności .
Budynek zlokalizowany przy ul. Plac Wolności 5 D w Biskupcu, znajduje się w obszarze objętym prawną ochroną konserwatorską w oparciu o art.7 pkt. 1 Ustawy z dnia 23 lipca 2003r. o ochronie zabytków i opiece nad zabytkami, oraz znajduje się na terenie historycznego układu urbanistycznego miasta Biskupca wpisanego do rejestru zabytków decyzją Wojewódzkiego Konserwatora Zabytków z dnia 14 grudnia 1957r.
Etap realizacji opracowania : uzyskane pozwolenie Wojewódzkiego Konserwatora Zabytków, pozwolenie na budowę i realizacja projektu
- Wygląd przed realizacją
- Wygląd przed realizacją
- rysunek elewacji
- Projekt kolorystyki elewacji
- Wygląd po realizacji
- Wygląd po realizacji
Nazwa obiektu/projektu : PROJEKT BUDOWLANY REMONTU, DOCIEPLENIA I KOLORYSTYKI ELEWACJI PÓŁNOCNO- WSCHODNIEJ OD STRONY PL. WOLNOŚCI, BUDYNKU MIESZKALNEGO WIELORODZINNEGO W BISKUPCU PRZY PL. WOLNOŚCI 1(28-35)
Lokalizacja obiektu : Budynek mieszkalny wielorodzinny zlokalizowany na działce 113/5, jako kontynuacja zabudowy pierzejowej, zlokalizowany w Biskupcu przy ul. Plac Wolności, w sąsiedztwie rzeki Dymer. Budynek znajduje się na terenie historycznego układu urbanistycznego obejmującego „Stare Miasto” Biskupca.
Rok powstania dokumentacji: 2012
Cechy charakterystyczne zabudowy: Budynek w swej formie przestrzennej tworzy jedną zwartą bryłę zrealizowaną, jako czterokondygnacyjny obiekt w części nadziemnej, w tym trzy kondygnacje pełne i jedna poddaszowa– poddasze częściowo użytkowe, budynek jest podpiwniczony. Do budynku prowadzą dwie wydzielone strefy wejściowe od ul. Plac Wolności: pierwsza- do części usługowej, druga- od podwórka do części mieszkalnej.
Budynek zlokalizowany przy ul. Plac Wolności 1 w Biskupcu, znajduje się w obszarze objętym prawną ochroną konserwatorską w oparciu o art.7 pkt. 1 Ustawy z dnia 23 lipca 2003r. o ochronie zabytków i opiece nad zabytkami, oraz znajduje się na terenie historycznego układu urbanistycznego miasta Biskupca wpisanego do rejestru zabytków decyzją Wojewódzkiego Konserwatora Zabytków
Etap realizacji opracowania : uzyskane pozwolenie Wojewódzkiego Konserwatora Zabytków, pozwolenie na budowę i realizacja projektu
- Wygląd przed realizacją
- Wygląd przed realizacją
- Projekt kolorystyki elewacji
- Wygląd po realizacji
- Wygląd po realizacji
- Wygląd po realizacji
- Wygląd po realizacji
Nazwa obiektu: PROJEKT BUDOWLANY REMONTU, DOCIEPLENIA I KOLORYSTYKI ELEWACJI POŁUDNIOWO- ZACHODNIEJ, A TAKŻE DOCIEPLENIA I KOLORYSTYKI LUKARN SKRAJNYCH ORAZ PRZEBUDOWY I DOCIEPLENIA LUKARNY ŚRODKOWEJ NA ELEWACJI PÓŁNOCNO – WSCHODNIEJ BUDYNKU MIESZKALNO-USŁUGOWEGO W BISKUPCU PRZY PL. WOLNOŚCI 1(28-35)
Lokalizacja obiektu : opis zgodny z zawartym przy opracowaniu z 2012
Rok powstania dokumentacji: 2015
Cechy charakterystyczne zabudowy: opis zgodny z zawartym przy opracowaniu z 2012
Etap realizacji opracowania : uzyskane pozwolenie Wojewódzkiego Konserwatora Zabytków, pozwolenie na budowę
- Wygląd przed realizacją
- Wygląd przed realizacją
- Wygląd przed realizacją
- Projekt kolorystyki elewacji
- Projekt kolorystyki elewacji
Nazwa obiektu: PROJEKT BUDOWLANY REMONTU, DOCIEPLENIA I PROJEKTU KOLORYSTYKI ELEWACJI BUDYNKU MIESZKALNEGO WIELORODZINNEGO W BISKUPCU PRZY PL. WOLNOŚCI 3 (10-22)
Lokalizacja obiektu : Budynek mieszkalny wielorodzinny z usługami w parterze zlokalizowany na działce 113/8, jako kontynuacja zabudowy pierzejowej- zabudowa narożna, zlokalizowany w Biskupcu przy ul. Plac Wolności 3. Budynek znajduje się na terenie historycznego układu urbanistycznego obejmującego „Stare Miasto” Biskupca.
Rok powstania dokumentacji: 2013
Cechy charakterystyczne zabudowy: Budynek w swej formie przestrzennej tworzy jedną zwartą bryłę zrealizowaną, jako czterokondygnacyjny obiekt w części nadziemnej, w tym trzy kondygnacje pełne i jedna poddaszowa– poddasze częściowo użytkowe, budynek jest podpiwniczony. Do budynku prowadzą trzy wydzielone strefy wejściowe od ul. Plac Wolności: pierwsza- do części usługowej, od ul. Warszawskiej: druga do części usługowej, trzecia- od podwórka do części mieszkalnej- wejście na klatkę schodową.
Etap realizacji opracowania : uzyskane pozwolenie Wojewódzkiego Konserwatora Zabytków, pozwolenie na budowę i realizacja projektu
- Wygląd przed realizacją
- Wygląd przed realizacją
- Wygląd przed realizacją
- Projekt kolorystyki elewacji
- Wygląd po realizacji
- Wygląd po realizacji
- Wygląd po realizacji
Nazwa obiektu: PROJEKT BUDOWLANY REMONTU DOCIEPLENIA I KOLORYSTYKI BUDYNKU MIESZKALNO- USŁUGOWEGO W BISKUPCU PRZY UL. PLAC WOLNOŚCI 5A -realizowany w 2 etapach z oddzielnymi pozwoleniami na budowę . 1 etap – PROJEKT ELEWACJI PÓŁNOCNO- WSCHODNIEJ OD UL.BOGUSŁAWSKIEGO, 2 etap -PROJEKT ELEWACJI OD PL.WOLNOŚCI
Lokalizacja obiektu : Budynek mieszkalny wielorodzinny z usługami w parterze, zlokalizowany na działce 213/3, jako kontynuacja zabudowy pierzejowej, w Biskupcu przy ul. Plac Wolności, w sąsiedztwie rzeki Dymer. Budynek znajduje się na terenie historycznego układu urbanistycznego obejmującego „Stare Miasto” Biskupca.
Budynek zlokalizowany przy ul. Plac Wolności 5 A w Biskupcu, znajduje się w obszarze objętym prawną ochroną konserwatorską w oparciu o art.7 pkt. 1 Ustawy z dnia 23 lipca 2003r. o ochronie zabytków i opiece nad zabytkami, oraz znajduje się na terenie historycznego układu urbanistycznego miasta Biskupca wpisanego do rejestru zabytków decyzją Wojewódzkiego Konserwatora Zabytków z dnia 14 grudnia 1957r.
Rok powstania dokumentacji: 2013-2014
Cechy charakterystyczne zabudowy: Budynek w swej formie przestrzennej tworzy jedną zwartą bryłę zrealizowaną, jako czterokondygnacyjny obiekt w części nadziemnej, w tym trzy kondygnacje pełne i jedna poddaszowa– poddasze częściowo użytkowe, budynek jest podpiwniczony. Do budynku prowadzą dwie wydzielone strefy wejściowe od ul. Bogusławskiego: pierwsza- do części mieszkalnej, druga- do zaplecza lokali usługowych, oraz strefa wejściowa do lokali usługowych od Pl. Wolności.
Etap realizacji opracowania : uzyskane pozwolenie Wojewódzkiego Konserwatora Zabytków, pozwolenie na budowę i realizacja obu etapów projektu
- Wygląd przed realizacją
- Wygląd przed realizacją
- Projekt kolorystyki elewacji
- Wygląd przed realizacją
- Projekt kolorystyki elewacji
- Wygląd po realizacji
- Wygląd po realizacji
Nazwa obiektu: PROJEKT BUDOWLANY REMONTU, DOCIEPLENIA I KOLORYSTYKI ELEWACJI BUDYNKU MIESZKALNO-USŁUGOWEGO W BISKUPCU PRZY UL.PL. WOLNOŚCI 3 (1-9)
Lokalizacja obiektu : Budynek mieszkalno- usługowy zlokalizowany na działce 113/7, jako kontynuacja zabudowy pierzejowej, zlokalizowany w Biskupcu przy ul. Plac Wolności, w sąsiedztwie rzeki Dymer. Budynek znajduje się na terenie historycznego układu urbanistycznego obejmującego „Stare Miasto” Biskupca.
Rok powstania dokumentacji: 2014
Cechy charakterystyczne zabudowy: Budynek w swej formie przestrzennej tworzy jedną zwartą bryłę zrealizowaną, jako czterokondygnacyjny obiekt w części nadziemnej, w tym trzy kondygnacje pełne i jedna poddaszowa– poddasze częściowo użytkowe, budynek jest podpiwniczony. Do budynku prowadzą trzy wydzielone strefy wejściowe. Dwie do części usługowej- od ul.Pl.Wolności, trzecia od podwórka- do części mieszkalnej.
Budynek zlokalizowany przy ul. Plac Wolności 3 w Biskupcu, znajduje się w obszarze objętym prawną ochroną konserwatorską w oparciu o art.7 pkt. 1 Ustawy z dnia 23 lipca 2003r. o ochronie zabytków i opiece nad zabytkami, oraz znajduje się na terenie historycznego układu urbanistycznego miasta Biskupca wpisanego do rejestru zabytków decyzją Wojewódzkiego Konserwatora Zabytków z dnia 14 grudnia 1957r. pod numerem A-429.
Etap realizacji opracowania : uzyskane pozwolenie Wojewódzkiego Konserwatora Zabytków, pozwolenie na budowę i realizacja projektu
- Wygląd przed realizacją
- Projekt kolorystyki elewacji
- Wygląd przed realizacją
- Projekt kolorystyki elewacji
- Wygląd po realizacji
- Wygląd po realizacji
- Wygląd po realizacji
- Wygląd po realizacji
Nazwa obiektu: PROJEKT BUDOWLANY REMONTU , DOCIEPLENIA I KOLORYSTYKI ELEWACJI BUDYNKU MIESZKALNO- USŁUGOWEGO W BISKUPCU PRZY UL. PLAC WOLNOŚCI 5C
Lokalizacja obiektu : Budynek mieszkalny z usługami w parterze, zlokalizowany na działce 213/5, jako kontynuacja zabudowy pierzejowej, w Biskupcu przy ul. Plac Wolności, w sąsiedztwie rzeki Dymer. Budynek znajduje się na terenie historycznego układu urbanistycznego obejmującego „Stare Miasto” Biskupca.
Rok powstania dokumentacji: 2015
Cechy charakterystyczne zabudowy: Budynek w swej formie przestrzennej tworzy jedną zwartą bryłę zrealizowaną, jako czterokondygnacyjny obiekt w części nadziemnej, w tym trzy kondygnacje pełne i jedna poddaszowa– poddasze częściowo użytkowe, budynek jest podpiwniczony. W budynku od strony Pl.Wolności na parterze znajdują się wejścia główne do dwóch lokali usługowych, zaś od strony ul.Bogusławskiego na parterze znajduje się wejście główne na klatkę schodowa prowadzącą do mieszkań oraz wejścia na zaplecze magazynowe w/w lokali usługowych.
Budynek zlokalizowany przy ul. Plac Wolności 5 C w Biskupcu, znajduje się w obszarze objętym prawną ochroną konserwatorską w oparciu o art.7 pkt. 1 Ustawy z dnia 23 lipca 2003r. o ochronie zabytków i opiece nad zabytkami, oraz znajduje się na terenie historycznego układu urbanistycznego miasta Biskupca wpisanego do rejestru zabytków decyzją Wojewódzkiego Konserwatora Zabytków
Etap realizacji opracowania : uzyskane pozwolenie Wojewódzkiego Konserwatora Zabytków i pozwolenie na budowę
- Wygląd przed realizacją
- Projekt kolorystyki elewacji
- Wygląd po realizacji
- Wygląd przed realizacją
- Projekt kolorystyki elewacji
- Wygląd po realizacji
Nazwa obiektu: PROJEKT BUDOWLANY REMONTU, DOCIEPLENIA I KOLORYSTYKI ELEWACJI BUDYNKU MIESZKALNO-USŁUGOWEGO W BISKUPCU PRZY UL.MONIUSZKI 2 Dz.nr 137/6 i 137/14
Lokalizacja obiektu : Budynek usytuowany w układzie centrum miasta, jako uzupełnienie ciągu zabudowy okalającej rondo i zamykającego kwartał Placu Wolności. Zabudowa wykonana w formie pierzei narożnej wzdłuż ulicy Moniuszki i Mickiewicza, z dostępem od strony podwórza- ul. Chopina.
Rok powstania dokumentacji: 2014- 2015
Cechy charakterystyczne zabudowy: Obiekt jest użytkowany, jako budynek 3 kondygnacyjny- 3 kondygnacje użytkowe, w tym poddasze, częściowo podpiwniczony. Na odcinku pierzei od strony ul.Mickiewicza- fragment bryły z jedną kondygnacją nadziemną- rozbudowa lokalu usługowego. Budynek posiada jedno wejście do części mieszkalnej, dwa wejścia do lokali usługowych- wszystkie od ul. Moniuszki, a także jedno do zaplecza lokalu usługowego od strony ul.Chopina. Najbardziej reprezentacyjna fasada od strony północnej- ul. Moniuszki jest zlokalizowana vis’a vis komunikacji- ronda. Elewacje od strony ul. Moniuszki i ul. Mickiewicza mają formę pierzejową.
Na tej podstawie lokalizacji w układzie starego miasta wpisanego do Rejestru zabytków na wszelkie prace wykonywane na tym obiekcie wymagane jest pozwolenie W-M Wojewódzkiego Konserwatora Zabytków.
Ze względu na jednoczesny wpis indywidualny obiektu w ewidencji gminnej w ochronie konserwatorskiej , obiekt we wstępnych zaleceniach konserwatorskich nie uzyskał zgody na docieplenie wewnętrzne . Dlatego wykonanie w/w projektu zostało poprzedzone analizą budynku przedłożoną w siedzibie W-MWKZ w Olsztynie w której wykazano zmiany wprowadzone w jego strukturze , które wpłynęły na utratę jego pierwotnej formy. W piśmie z dnia 10.06.2014r Wojewódzki Konserwator Zabytków przychylił się do prośby Inwestora i nie wniósł uwag do planowanej inwestycji pod względem możliwości docieplenia budynku od zewnątrz, w zakresie wskazanym we wniosku Inwestora z dnia 03.03.2014 i w takiej formie zatwierdził projekt budowlany odrębnym pozwoleniem .
Etap realizacji opracowania : uzyskane pozwolenie Wojewódzkiego Konserwatora Zabytków i pozwolenie na budowę
- Wygląd przed realizacją
- Wygląd przed realizacją
- Wygląd przed realizacją
- Wygląd przed realizacją
- Wygląd przed realizacją
- Wygląd przed realizacją
- Projekt kolorystyki elewacji
- Projekt kolorystyki elewacji
- Projekt kolorystyki elewacji

























































































