12.2024
OPRACOWANIE PROJEKTOWE DLA ISTNIEJĄCEGO BUDYNKU MIESZKALNEGO JEDNORODZINNEGO w Biskupcu przy ul. Fryderyka Chopina 5, na działce oznaczonej w ewidencji gruntów nr 150, obręb Miasto Biskupiec 4, Powiat Olsztyński, Województwo Warmińsko- Mazurskie – etap 2
Przedmiotem opracowania – etap 2, jest ekspertyza– opinia określająca obecny stan techniczny, sposób prowadzenia prac remontowych i odtworzeniowych oraz zabezpieczenia budynku mieszkalnego jednorodzinnego w Biskupcu przy ul. Fryderyka Chopina 5, na podstawie Decyzji Wojewódzkiego Konserwatora Zabytków w Olsztynie Znak IZNR.5180.47.2022.at z dnia 01.09.2023 r, oraz uprzednio wykonanych opracowań :
-
Mapa do celów projektowych z aktualizacją granic w skali 1:500
-
Dokumentacja geotechniczna z miesiąca czerwca 2024 r.
-
Wyniki badań konserwatorskich elewacji frontowej i programy prac konserwatorskich dla budynku z miesiąca sierpnia 2024 r.
-
Obliczenia sprawdzające do Ekspertyzy
10.2024
Potwierdzenie zakończenia budowy zrealizowanej Inwestycji
„BUDOWA BUDYNKU MIESZKALNEGO JEDNORODZINNEGO W BOTOWIE , GMINA BISKUPIEC”.
09.2024
ODDANIE I UZYSKANIE POZWOLENIA NA BUDOWĘ DLA BUDOWY BUDYNKU MIESZKALNEGO JEDNORODZINNEGO WRAZ Z TOWARZYSZĄCA INFRASTRUKTURĄ TECHNICZNĄ NA DZIAŁCE NR 371/10, OBRĘB 0018 SPRĘCOWO, GMINA DYWITY
09.2024
Złożenie dokumentów do zakończenia budowy dla realizacji Inwestycji
„BUDOWA BUDYNKU MIESZKALNEGO JEDNORODZINNEGO W BOTOWIE , GMINA BISKUPIEC”.
08.2024
PROGRAM FUNKCJONALNO-UŻYTKOWY dla inwestycji:
RENOWACJA ZABYTKOWYCH KAPLICZEK WARMIŃSKICH
NA TERENIE GMINY GIETRZWAŁD
Przedmiotem zamówienia, jest wykonanie prac projektowych i robót budowlanych, dla renowacji 7 zabytkowych kapliczek warmińskich wpisanych do rejestru zabytków lub gminnej ewidencji zabytków, znajdujących się na terenie Gminy Gietrzwałd. Głównym zadaniem przeprowadzonej renowacji jest osiągnięcie odpowiedniego stanu technicznego oraz estetycznego obiektów na podstawie programu prac konserwatorskich, opinii stanu technicznego oraz projektu budowlanego.
Zakres inwestycji obejmuje :
dz nr 154/1, obręb 0021 Woryty – działka drogowa o pow. 4,5955 ha
dz nr 232, obręb 0017 Sząbruk – działka drogowa o pow. 0,56 ha
dz nr 245/1, obręb Unieszewo – działka oznaczona na mapie symbolem Bp o pow. 0,4093 ha
dz nr 56/6 Rentyny, obręb 0021 Woryty – dz. ozn.ona na mapie symb. Bp o pow. 0,0058 ha
dz nr 162/2, obręb 0012 Pęglity – działka oznaczona na mapie symbolem Bp o pow. 0,0035 ha
dz nr 12/2, obręb 0009 Naglady – grunt rolny RIVb o pow. 0,0197 ha
dz nr 237/4, obręb 0003 Gietrzwałd – działka drogowa o pow. 0,0426 ha
06.2024
Przekazanie koncepcji i PFU dla realizacji opracowania :
PROGRAM FUNKCJONALNO-UŻYTKOWY
wraz z koncepcją architektoniczną dla zadania
„MODERNIZACJA STADIONU MIEJSKIEGO W BISZTYNKU” –
PRZEDMIOT ZAMÓWIENIA OBEJMUJE: PRZEBUDOWĘ BIEŻNI LEKKOATLETYCZNEJ, BUDOWĘ OGRODZENIA PŁYTY BOISKA, WYMIANA TRYBUN WRAZ Z CZĘŚCIOWYM ZADASZENIEM, OŚWIETLENIE, ROZBIÓRKĘ BUDYNKU ZAPLECZA BOISKA, POSADOWIENIE ELEMENTÓW SIŁOWNI ZEWNĘTRZNEJ.
06.2024
Opracowanie Programu Funkcjonalno -Użytkowego- „PFU” dla terenów zlokalizowanych w obrębie gminy Stawiguda
PROGRAM FUNKCJONALNO-UŻYTKOWY NA ZAPROJEKTOWANIE I WYBUDOWANIE KOMPLEKSU SPORTOWEGO „ORLIK” W MIEJSCOWOŚCI BARTĄG – dla planowanej inwestycji :
„Zaprojektowanie i wybudowanie kompleksu sportowego Orlik w miejscowości Bartąg”
Adresy (lokalizacja) obiektu, którego dotyczy program funkcjonalno-użytkowy:
Jednostka ewidencyjna 281411_2 Stawiguda / Działka inwestycyjna numer 2/4, obręb
Bartąg. Zjazd na teren inwestycji z drogi na dz.301/2- ul. Jeziorna
PROGRAM FUNKCJONALNO-UŻYTKOWY NA ZAPROJEKTOWANIE I WYBUDOWANIE KOMPLEKSU SPORTOWEGO „ORLIK” W MIEJSCOWOŚCI TOMASZKOWO – dla planowanej inwestycji :
„Zaprojektowanie i wybudowanie kompleksu sportowego Orlik w miejscowości
Tomaszkowo”
Adresy (lokalizacja) obiektu, którego dotyczy program funkcjonalno-użytkowy:
Jednostka ewidencyjna 281411_2 Stawiguda / Działka inwestycyjna numer 121/15, 121/6, obręb 0013 Tomaszkowo. Zjazd na teren inwestycji z drogi serwisowej przy drodze krajowej S51 działki obręb 0013 Tomaszkowo .41/1 , 121/7 , obręb 0002 Dorotowo.109/1, 110.
06.2024
Projekt budowlany dla inwestycji pt.
REWITALIZACJA- REMONT I ODTWORZENIE ELEWACJI BUDYNKU WRAZ Z REMONTEM I ODTWORZENIEM POKRYCIA, POSZYCIA I KONSTRUKCJI DACHÓW WODOCIĄGOWEJ WIEŻY CIŚNIEŃ Z BUDYNKIEM ŁAŹNI
ADRES OBIEKTU BUDOWLANEGO: UL. POCZTOWA 18b, 12-130 PASYM
Budynek wodociągowej wieży ciśnień wraz z budynkiem łaźni, zlokalizowany w Pasymiu na wschód od ul. Pocztowej 18b obręb 4, powiat szczycieński, województwie warmińsko – mazurskim. Obiekt otacza zabytkowy park miejski porośnięty starodrzewem. Obiekt powstał w 1906 r. na mocy decyzji władz miasta Passenheim (ob. Pasym) które zdecydowały o budowie sieci instalacji wodociągowej i kanalizacyjnej.
Uwaga: Budynek zlokalizowany przy ul. Pocztowej 18b w Pasymiu objęty jest prawną ochroną konserwatorską w oparciu o art.7 pkt.1 ustawy o ochronie zabytków i opiece nad zabytkami, na podstawie decyzji WKZ wpisującej obiekt do rejestru zabytków pod numerem A-4176 z dn. 26.05.2000r.
05.2024
Zdjęcia z wizji lokalnej i pomiarów dla realizacji opracowania :
PROGRAM FUNKCJONALNO-UŻYTKOWY
wraz z koncepcją architektoniczną dla zadania
„MODERNIZACJA STADIONU MIEJSKIEGO W BISZTYNKU” –
PRZEDMIOT ZAMÓWIENIA OBEJMUJE: PRZEBUDOWĘ BIEŻNI LEKKOATLETYCZNEJ, BUDOWĘ OGRODZENIA PŁYTY BOISKA, WYMIANA TRYBUN WRAZ Z CZĘŚCIOWYM ZADASZENIEM, OŚWIETLENIE, ROZBIÓRKĘ BUDYNKU ZAPLECZA BOISKA, POSADOWIENIE ELEMENTÓW SIŁOWNI ZEWNĘTRZNEJ.
03-04.2024
Opracowanie Programu Funkcjonalno -Użytkowego, dalej „PFU” w celu zaprojektowania i wykonania robót budowlanych dla zadania „Budowa ogrodzenia cmentarza komunalnego w Bisztynku, etap I oraz etap II”
Całość inwestycji zlokalizowana w Bisztynku. Adres planowanej inwestycji : WOJEWÓDZTWO WARMIŃSKO-MAZURSKIE, POWIAT BARTOSZYCKI, DZIAŁKA 163 i 164 OBR. 2 MIASTA BISZTYNEK. Zamówienie będzie obejmować zaprojektowanie i wykonanie prac budowlanych.
Przedmiotowa nieruchomość wpisana jest do rejestru zabytków jako cmentarz rzymsko – katolicki
pod numerem A-1962 wpisem z dnia 19 marca 1987r. Teren objęty inwestycji to zabytkowy cmentarza w Bisztynku podlegający prawnej ochronie konserwatorskiej wg art. 7 us t. 1 ustawy z dnia 23 lipca 2003 r. o ochronie zabytków i opiece nad zabytkami (Dz. U. z 2022r. poz. 840) na podstawie decyzji WKZ z dn. 19.03.1987r.
Teren inwestycji został ujęty w Miejscowym Planie Zagospodarowania Terenu pod symbolem „ 3ZC”- funkcja podstawowa to tereny cmentarza
…………………………………………………………………………………………………………………………………………………………………………………
03.2024
W celu pogłębienia proponowanej przez nas oferty i podniesienia standardu proponowanych usług z dziedziny projektowo- inwestycyjnej , wzmożyliśmy działania w kierunku pozyskania zleceń na realizację Programów Funkcjonalno- Użytkowych (PFU) na okres nadchodzących miesięcy . Dodatkowo zwiększyliśmy możliwości naszej usługi w zakresie wizualizacji obiektów przez zainwestowanie w rozbudowę oprogramowania oraz urządzeń do obsługi prowadzonej działalności .Planujemy także poszerzenie działalności w zakresie nowo wprowadzanych form i narzędzi ds. planowania przestrzennego
…………………………………………………………………………………………………………………………………………………………………………………
03.2024
Ostatnie wizyty 20 i 29.03.2024 w ramach nadzoru Botowo, dla realizacji Inwestycji „BUDOWA BUDYNKU MIESZKALNEGO JEDNORODZINNEGO W BOTOWIE , GMINA BISKUPIEC”.
20.03.2024
29.03.2024
02.2024
PROJEKT BUDOWLANY dla prac obejmujących :
REMONT I ODTWORZENIE ELEWACJI FRONTOWEJ BUDYNKU URZĘDU GMINY BANIE MAZURSKIE
Przedmiotowy budynek administracyjny (użyteczności publicznej) z lokalami mieszkalnymi na poddaszu położony jest przy ul. Konopnickiej 26 w Baniach Mazurskich dz. nr 329/8 obręb Banie Mazurskie.
Rozpoczęte w 2021 r. prace termomodernizacyjne doprowadziły do radykalnych zmian w wyglądzie elewacji podwórzowej i szczytowych oraz częściowego usunięcia detalu architektonicznego na fasadzie. W trakcie wykonywania robót budowlanych związanych z termomodernizacją budynku, ściana frontowa obiektu została wpisana do rejestru zabytków na podstawie decyzji Wojewódzkiego Konserwatora Zabytków IZAR.5140.1.8.2021.jk z dnia 22 lipca 2021r. Prace termomodernizacyjne zostały przerwane a Wojewódzki Konserwator Zabytków nakazał usunąć styropian z elewacji frontowej, oczyścić ceglane partie elewacji, uzupełnić tynkowanie, odtworzyć skute i uszkodzone detale architektoniczne.
Podstawowym założeniem prac konserwatorskich ujętych w zakresie projektu dotyczącego elewacji frontowej, jest likwidacja czynników niszczących (m.in. płyt styropianowych, wtórnych warstw malarskich), zachowanie i konserwacja oryginalnej substancji zabytkowej oraz przywrócenie elewacji budynku walorów estetycznych i integralności formy w stopniu optymalnym, na podstawie wykonanego programu prac konserwatorskich / badań konserwatorskich.
01.2024
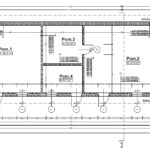
Zatwierdzona przez inwestorów koncepcja aranżacji wnętrz budynku dla realizacji Inwestycji „BUDOWA BUDYNKU MIESZKALNEGO JEDNORODZINNEGO W BOTOWIE , GMINA BISKUPIEC”. Poniżej przedstawiono koncepcję aranżacji na rzucie parteru, a następnie formę wizualną z podziałem na pomieszczenia.
RZUT PARTERU – POMIESZCZENIA
KORYTARZ
ŁAZIENKA GOŚCI
ŁAZIENKA- POKÓJ KĄPIELOWY
SYPIALNIA GŁÓWNA
SYPIALNIA GOŚCI
SALON Z ANEKSEM KUCHENNYM
12.2023
OPRACOWANIE PROJEKTOWE DLA ISTNIEJĄCEGO BUDYNKU MIESZKALNEGO JEDNORODZINNEGO w Biskupcu przy ul. Fryderyka Chopina 5, na działce oznaczonej w ewidencji gruntów nr 150, obręb Miasto Biskupiec 4, Powiat Olsztyński, Województwo Warmińsko- Mazurskie – etap 1
Przedmiotem opracowania jest inwentaryzacja i opis okresowego- tymczasowego zabezpieczenia budynku na podstawie Decyzji Wojewódzkiego Konserwatora Zabytków w Olsztynie Znak IZNR.5180.47.2022.at z dnia 01.09.2023 r.
Historycznie budynek stanowi segment zwartej pierzei kamienic powstałych w XIX i XX w. W okresie wojennym część kamienic obok przedmiotowej pierzei została zburzona. Po wojnie, część z budynków pierzei postanowiono odbudowywać. Obecnie przedmiotowa kamienica stanowi przedostatnią zabudowę , poprzedzającą wysoką kamienicę z lokalami mieszkalnymi, zamykającą pierzeję od strony północnej- ul. Chrobrego .
Budynek znajduje się na terenie historycznego układu urbanistycznego miasta Biskupca wpisanego do rejestru zabytków, decyzją Wojewódzkiego Konserwatora Zabytków z dnia 14 grudnia 1957r., pod numerem A-429. Jest także wpisany indywidualnie do Wojewódzkiej ewidencji zabytków na podstawie art.22.ust.2 Ustawy o ochronie zabytków i opiece nad zabytkami .
Budynek został ujęty w Miejscowym Planie Zagospodarowania Terenu pod symbolem „ 3.22.MWU”- funkcja podstawowa to zabudowa mieszkalna wielorodzinna lub zabudowa szeregowa, w tym mieszkalnictwo zbiorowe w postaci pokoi do wynajęcia,pensjonatu, hotelu , funkcja uzupełniająca- zabudowa usługowa w szerokim zakresie w tym usługi gastronomii i handlu, usługi związane z obsługą ruchu turystycznego
01.2024
Zatwierdzona przez inwestorów koncepcja aranżacji wnętrz budynku dla realizacji Inwestycji „BUDOWA BUDYNKU MIESZKALNEGO JEDNORODZINNEGO W BOTOWIE , GMINA BISKUPIEC”
12.2023
Projekt dla inwestycji:
REMONT ISTNIEJĄCYCH POMIESZCZEŃ W CELU DOSTOSOWANIA DO WYMAGAŃ STOSOWANIA NIEINWAZYJNEJ WENTYLACJI MECHANICZNEJ W WARMIŃSKO- MAZURSKIM CENTRUM CHORÓB PŁUC W OLSZTYNIE
Inwestycja polega na dostosowaniu istniejących pomieszczeń zlokalizowanych w budynku głównym Centrum Chorób Płucnych (wpisanym do Gminnej Ewidencji Zabytków miasta Olsztyna) do wymagań stosowania nieinwazyjnej wentylacji mechanicznej dla pacjentów z ostrą niewydolnością oddechową. Pomieszczenia objęte remontem zlokalizowane są na oddziale Kliniki Pulmonologicznej w budynku A na II piętrze.
12.2023 – informacja o zamianie adresu
Z uwagi na fakt, iż od dnia 1.12.2023 r. dane adresowe prowadzonej przeze mnie działalności gospodarczej : PRACOWNIA PROJEKTOWA arch. RADOSŁAW PRZYBYLAK, NIP: 739-327-22-58 uległy zmianie , nowym adresem prowadzonej działalności jest :
Olsztyn , ul. Kołobrzeska 36B/19 , 10-434 Olsztyn
Informuję iż wystawiane przeze mnie dokumenty , w tym faktury, będą wystawiane pod nowym adresem
Jednocześnie proszę o kierowanie korespondencji oraz odpowiednią zmianę danych adresata w dokumentach , w tym fakturach – rachunkach kierowanych do mnie
11.2023
Propozycja iluminacji i propozycja utwardzenia wokół budynku w ramach pełnionego nadzoru autorskiego dla realizacji Inwestycji „BUDOWA BUDYNKU MIESZKALNEGO JEDNORODZINNEGO W BOTOWIE , GMINA BISKUPIEC”
11.2023
KONCEPCJA ARCHITEKTONICZNO BUDOWLANA BUDYNKU MIESZKALNEGO JEDNORODZINNEGO WRAZ Z TOWARZYSZĄCA INFRASTRUKTURĄ TECHNICZNĄ NA DZIAŁCE NR 371/10, OBRĘB 0018 SPRĘCOWO, GMINA DYWITY
10.2023
Spotkanie na budowie Botowo w ramach pełnionego nadzoru autorskiego dla realizacji Inwestycji „BUDOWA BUDYNKU MIESZKALNEGO JEDNORODZINNEGO W BOTOWIE , GMINA BISKUPIEC”
08.2023
Oddanie projektu Remontu, przebudowy i rozbudowy budynków mieszkalno- usługowego, przy ul. Moniuszki 10 w Biskupcu , w celu uzyskania Decyzji o pozwoleniu na budowę , po uzyskaniu Pozwolenia Wojewódzkiego Konserwatora Zabytków . Ostatecznie cała procedura zakończona wydaniem POZWOLENIA NA BUDOWĘ
12 i 20.06.2023 – Zdjęcia ze spotkań ws montażu okien i dachówki w ramach pełnionego nadzoru autorskiego dla realizacji Inwestycji „BUDOWA BUDYNKU MIESZKALNEGO JEDNORODZINNEGO W BOTOWIE , GMINA BISKUPIEC”. Na ostatnich ujęciach poniżej ,obok „zdjęcia z drona”, podobne ujęcie z koncepcji wykonywanej na etapie projektowym do uzgodnień z inwestorami.
- widok 11 – nowa konc.Botowo
06.2023
Wykonanie projektu budowlanego i projektu wykonawczego pt.
PRZEBUDOWA, ROZBUDOWA I ZMIANA SPOSOBU UŻYTKOWANIA BUDYNKU OŚWIATY – PRZEDSZKOLA W MIEJSCOWOŚCI DYWITY , W ZAKRESIE : ZWIĘKSZENIA POWIERZCHNI UŻYTKOWEJ I RUCHU PRZEDSZKOLA, PRZEBUDOWY ZE ZMIANĄ SPOSOBU UŻYTKOWANIA ISTNIEJĄCYCH POMIESZCZEŃ NA POTRZEBY PROJEKTOWANEJ KUCHNI I SZATNI , WRAZ Z TOWARZYSZĄCĄ INFRASTRUKTURĄ TECHNICZNĄ
05 .2023
Wizyta w ramach pełnionego nadzoru autorskiego dla realizacji Inwestycji „BUDOWA BUDYNKU MIESZKALNEGO JEDNORODZINNEGO W BOTOWIE , GMINA BISKUPIEC”. Wizyta związana z realizacją stolarki połaci na poddaszu oraz ustalenia szczegółów osadzenia stolarki otworowej parteru i poddasza przed jej zamówieniem.
- Profil stolarki na parterze
- zdjęcie od wewnątrz na szczyt
- zdjęcie z zewnątrz na szczyt
- przeszklenie na poddaszu 1
- przeszklenie na poddaszu 2
- przeszklenie na poddaszu 3
05.2023
Koncepcja dla inwestycji :
REMONT, PRZEBUDOWA I ROZBUDOWA BUDYNKU MIESZKALNEGO JEDNORODZINNEGO W ZABUDOWIE BLIŹNIACZEJ W ZAKRESIE JEDNEGO LOKALU MIESZKALNEGO ,WRAZ Z TOWARZYSZĄCA INFRASTRUKTURĄ TECHNICZNĄ, W TYM: OSŁONA NA ODCINKACH ISTNIEJĄCEJ KANALIZACJI SANITARNEJ, ORAZ KOMUNIKACJA PIESZA WOKÓŁ ROZBUDOWY. Adres obiektu: BISKUPIEC, ULICA ŻELAZNA 10, DZIAŁKA NR 246/1, GMINA BISKUPIEC
Remont , przebudowa i rozbudowa istniejącego budynku mieszkalnego, jednorodzinnego w zabudowie bliźniaczej w zakresie jednego lokalu mieszkalnego, o pomieszczenie jadalni na poziomie parteru, zwieńczonego balkonem- tarasem dostępnym z poziomu poddasza.
Głównym powodem rozbudowy budynku jest:
– powiększenie pomieszczenia jadalni jako rozbudowa części dziennej parteru
– wprowadzenie nad rozbudową- dodatkowego tarasu/balkonu ,częściowo wysuniętego na wsporniku , z dostępem z jednego z pomieszczeń na poddaszu , co umożliwia wyjście balkonowe z pokojów na poziomie poddasza
-zmiana układu funkcjonalnego z dostosowaniem do potrzeb inwestora.
Zgodnie z zapisami obowiązującego MPZP- UCHWAŁY Nr XXX/211/05 Rady Miejskiej w Biskupcu z dnia 15 czerwca 2005 r. Budynek zlokalizowany przy ul. Żelaznej 10 w Biskupcu objęty był indywidualnym wpisem do ewidencji zabytków . W toku postępowania mającego na celu uzyskanie zaleceń konserwatorskich dla planowanej inwestycji , określono wykreślenie indywidualnego wpisu do ewidencji jw. , co potwierdzono dodatkowo zawiadomieniem o wykreśleniu zabytku nieruchomego z wojewódzkiej ewidencji zabytków z dnia 11.01.2017 r. . Informacja o wykreśleniu została także ujęta w zapisach Zaleceń Wojewódzkiego Konserwatora Zabytków z dnia 10.09.2021r . W związku z powyższym przedmiotowy budynek wraz z działką nie jest objęty prawną ochroną konserwatorską w oparciu o art.7 pkt.1 ustawy o ochronie zabytków i opiece nad zabytkami oraz art.22 ust.4 w/w ustawy. Według zapisu Miejscowego Planu Zagospodarowania Przestrzennego – UCHWAŁY jw. – działka 246/1 wraz z przedmiotowym budynkiem jest objęta podstrefą B1 – ochrony konserwatorskiej . Według zapisów MPZP jw. wszystkie projekty realizacyjne oraz wszelkie zmiany planowane na podstawie dokumentacji projektowej w obrębie strefy „B1” wymagają uzgodnienia z właściwym Wojewódzkim Konserwatorem Zabytków.
04.2023
Koncepcja wizualna poddasza dla inwestycji : „BUDOWA BUDYNKU MIESZKALNEGO JEDNORODZINNEGO W BOTOWIE , GMINA BISKUPIEC”.
Koncepcja będzie pełnić funkcję pomocniczą dla podjęcia decyzji odnośnie przyszłej aranżacji wnętrza w poziomie poddasza .
03.2023
Zdjęcia z realizacji stropu nad parterem , więźby dachowej i szczytu dla realizacji „BUDOWA BUDYNKU MIESZKALNEGO JEDNORODZINNEGO W BOTOWIE , GMINA BISKUPIEC”.
- zdjęcie stropu i poddasza- kostr.dachu
- zdjęcie szczytu 1
- zdjęcie szczytu 2
03.2023
Przekazanie do Starostwa Powiatowego w Iławie projektu dla inwestycji : REWITALIZACJA ZABYTKOWEGO PARKU W FIJEWIE wraz wnioskiem o wydanie Pozwolenia na Budowę , poprzedzone uzyskaniem uzgodnień sanepid i p.poż , a także uzgodnienia PZPN i Pozwolenia Wojewódzkiego Konserwatora Zabytków.
Uzyskanie przedmiotowego pozwolenia na budowę, w efekcie czego do realizacji oddano założenie projektowe w którym centralną częścią jest wyremontowana i dostosowana do nowo planowanych wymagań rozgrywkowych płyta boiska wraz z zapleczem oraz budynkiem ją obsługującym . Do tego budynku dochodzi bryła budynku obsługi ogólnej
z sanitariatami ogólnodostępnymi. Całe założenie parkowe można zwiedzać , bądź tez wykorzystywać na cele sportów indywidualnych , poruszając się po wyznaczonych ciągach pieszych , z przystankami w miejscach placu zabaw, punktu fitness- siłowni terenowej i altany wypoczynkowej.
03.2023
Miło nam poinformować iż realizacja wykonanego przez jednostkę projektową PRACOWNIA PROJEKTOWA arch. RADOSŁAW PRZYBYLAK , za rekomendacją Nadleśniczego, projektu pt. Przebudowa wraz z remontem budynku biurowego Nadleśnictwa Wichrowo
Otrzymała nominację i została zakwalifikowana do Finału ogólnopolskiego konkursu otwartego „ MODERNIZACJA ROKU & BUDOWA XXI w.”. Wyróżnienie to motywuje nas do dalszego rozwoju prowadzonej działalności
02.2023
Wykonanie projektu pt.
REWALORYZACJA ZABYTKOWEGO PARKU W ŻARDENIKACH Z UWZGLĘDNIENIEM OCHRONY OKOLICZNYCH MIEJSC RÓŻNORODNOŚCI BIOLOGICZNEJ W MIEJSCOWOŚCI ŻARDENIKI
Przedmiotem opracowania jest rewaloryzacja, czyli zespół działań konserwatorskich mających na celu przywrócenie wartości użytkowych i ekspozycję oraz częściowe odtworzenie dziedzictwa kulturowego zespołu urbanistycznego parku w miejscowości Żardeniki, na działce o numerze 18/61, położonej w gminie Świątki, Powiat Olsztyński, Województwo Warmińsko -Mazurskie.
Park w Żardenikach wpisany został do rejestru zabytków nieruchomych pod nr: 3722 w dniu 30.12.1986 r. (decyzja A3722 z 1986-12-30). Powierzchnia parku wynosi 2,62 ha przy czym teren towarzyszący parkowi w obrębie tej samej działki geodezyjnej jest znacznie większy i składa się na niego część dawnego podwórza gospodarczego oraz otaczające go podmokłe tereny rolne. Część wpisaną do rejestru zabytków wyznaczają: od wschodu półkolisty rów, zabudowania dworskie od zachodu a od północy i południa pola (tereny rolne). Park (wraz z całą działką – nr ewid. 18/61 obręb Worławki) stanowi własność prywatną.
02.2023
Inwentaryzacja i PROJEKT KONCEPCYJNY DLA ROZBIÓRKI SAMONOŚNEJ KONSTRUKCJI ZWIEŃCZENIA WIEŻY – OSŁONY ZBIORNIKA ZAGRAŻAJĄCEJ POBLISKIEMU TOROWISKU PKP I ODTWORZENIE SZKIELETOWEGO ZARYSU W NAWIĄZANIU DO FORMY PIERWOTNEJ OSŁONY TEGOŻ ZBIORNIKA zlokalizowanego w miejscowości Montowo .
Budynek podlega ochronie Wojewódzkiego Konserwatora Zabytków , z uwagi na powyższe projekt został złożony w siedzibie Wojewódzkiego Urzędu Ochrony Zabytków w Olsztynie Delegatura Elbląg
- zdjęcie 1- stan istn.
- zdjęcie 2- stan istn.
- Viz 4- konc. 4- wybrana
- Viz 3- konc.3
- Viz 2- konc.2
- Viz 1- konc.1
- Elew.1- konc.4 -wybrana
- Viz 8- konc. 4- wybrana
- Viz 7- konc. 4- wybrana
- Viz 6- konc. 4- wybrana
- Viz 5- konc. 4- wybrana
- Elew.1- konc.1
- Elew.1- konc.2
01.2023
Spotkanie w siedzibie Gminy Lubawa w celu uzgodnienia ostatecznej koncepcji dla inwestycji : REWITALIZACJA ZABYTKOWEGO PARKU W FIJEWIE W ZAKRESIE . Uzgodnienie dotyczyło w szczególności – planowanego zakresu zmian w parku , układu ciągów pieszych i pieszo- jezdnych , formy małej architektury, dostosowania stadionu do wymogów i oczekiwań rozgrywkowych, a także ostatecznej koncepcji nowej formy budynku zaplecza sportowego po planowanej przebudowie i rozbudowie.
Na Przedmiotową rewitalizację składa się zespół działań , mających na celu realizację dwukierunkową inwestycji . Pierwszym kierunkiem rewitalizacji jest przywrócenie wartości użytkowych, dziedzictwa kulturowego i ekspozycję oraz częściowe odtworzenie zabytkowego zespołu urbanistycznego parku z wyodrębnieniem zachowanego układu komunikacyjnego zbliżonego do projektu E. Larassa na podstawie mapy z początku XX wieku . Drugim zaś jest realizacja działań na rzecz społeczności lokalnej, z szczególnym uwzględnieniem sportu, rekreacji i przyszłej integracji społecznej, przez odtworzenie z przywróceniem parku jako miejsca aktywności sportowej, zarówno na poziomie indywidualnym jak również masowym, a także miejsca integracji rodzin z możliwością organizowania imprez okolicznościowych i wydarzeń kulturalnych .
Założenie parkowe w Fijewie wpisane został do rejestru zabytków nieruchomych województwa Warmińsko- Mazurskiego pod nr: A4487 decyzją z dnia 7.12.2007 r. Wszelkie inwestycje na tym terenie wymagają Pozwolenia Wojewódzkiego Konserwatora Zabytków
Z uwagi na powyższe , po uzyskaniu akceptacji inwestora dla przedstawionej koncepcji , w celu skonsultowania i wstępnej aprobaty dla planowanych działań i przyjętych form architektonicznych , zainicjowaliśmy spotkanie w siedzibie Wojewódzkiego Urzędu Ochrony Zabytków w Olsztynie Delegatura Elbląg
01.2023
Przekazanie projektu realizowanego od drugiej połowy roku 2022 roku :
PROJEKTU BUDOWLANEGO REMONTU i PRZEBUDOWY REMONT I PRZEBUDOWA KOŚCIOŁA P.W. ŚWIĘTYCH APOSTOŁÓW PIOTRA I PAWŁA W DURĄGU NA DZIAŁCE NR 234/2 , OBRĘB 0004 DURĄG
Kościół w Durągu gm. Ostróda, p.w. Świętych Apostołów Piotra i Pawła podlega ochronie prawnej na mocy art. 7 pkt 1. Ustawa z dnia 23 lipca 2003r o ochronie zabytków i opiece nad zabytkami (Dz. U. 2003 Nr 162 poz. 1568), jako obiekt wpisany do Rejestru Zabytków woj. Warmińsko-Mazurskiego pod. nr; a-769, na podstawie Decyzji WKZ z dnia 21-02-1968.
Uwzględniając wyniki badań architektonicznych oraz program prac konserwatorskich przyjęto następujące rozwiązania projektowe:
Nawa główna poddana zostanie remontowi (poza dachem i więźbą dachową.) w zakresie wzmocnienia fundamentów, wykonania izolacji przeciwwilgociowej wymiany tynku wewnętrznego, podsufitki. Od zewnątrz przywrócony zostanie wygląd elewacji z lat 30 tych XX wieku. Elewacja była wówczas otynkowana. Zgodnie z archiwalną dokumentacją posadzka w kościele znajdowała sie poniżej obecnego poziomu . Projekt zakłada odtworzenie posadzki na pierwotnej rzędnej lub zbliżonej do pierwotnej .Projekt przywraca też dawny chór drewniany( w miejscu obecnej zabudowy w zachodniej części kościoła.) z usytuowaniem osiowym organów. Chór wsparty będzie na konstrukcji drewnianej z wysunięciem w formie trapezu w kierunku ołtarza. Ze względu na zły stan konstrukcji dobudówki zostaną rozebrane i wykonane ponownie Kruchta zostanie odtworzona na tym samym rzucie. Zakrystia odtworzona zostanie w oparciu o archiwalia , ślady po połączeniu dachu zakrystii i nawy głównej z uwzględnieniem powiększenia jej wzdłuż elewacji nawy głównej w celu uzyskania pomieszczenia gospodarczego – zaplecza.
- Durag E1- inw.
- Durag E1- proj.
- Durag E2- inw.
- Durag E2- proj.
- Durag E3- inw.
- Durag E3- proj.
- Durag E4- inw.
- Durag E4- proj.
- Durag zdjęcie historyczne 1
- Durag zdjęcie historyczne 2
- Durag zdjęcie historyczne 3
- Durag zdjęcie historyczne 4
- Durag zdjęcie stan istn. 1
- Durag zdjęcie stan istn. 2
- Durąg przekrój – inw.
- Durąg przekrój-proj.
- Durag zdjęcie stan istn. 3
- Durag zdjęcie stan istn. 4
- Durag zdjęcie stan istn. 5
- Durag zdjęcie stan istn. 6
- Durag zdjęcie stan istn. 7
- Durag zdjęcie stan istn. 8
- Durag zdjęcie stan istn. 9
- Durag zdjęcie 4-el.oryginalnego
01.2023
Zakończenie budowy – realizacji projektu Przebudowy wraz z remontem budynku Nadleśnictwa Wichrowo.
12.2022
PROJEKT TECHNICZNY ZABEZPIECZENIA I BIEŻĄCEJ KONSERWACJI WIEŻY BRAMNEJ WRAZ Z FRAGMENTEM PRZYLEGAJĄCEGO MURU MIĘDZYBRAMIA
Gotycki zamek w Szymbarku został zbudowany w latach 1378-86 przez Kapitułę Pomezańską. Warownię wzniesiono na planie trapezu o wymiarach 75 x 92 m od północy i 97 m od południa. Od strony wschodniej umieszczono bramę wjazdową flankowaną przez basztę. Z uwagi na swój zabytkowy charakter, obiekt wraz z otoczeniem podlega ścisłej ochronie Wojewódzkiego Konserwatora Zabytków przez wpis do rejestru zabytków.
- Przekrój 1- Szymbark
- Przekrój 2- Szymbark
- Przekrój 3- Szymbark
- Przekrój 4- Szymbark
- Zdjęcie 1- Szymbark
- Zdjęcie 2- Szymbark
- Zdjęcie 3- Szymbark
- Zdjęcie 4- Szymbark
- Zdjęcie 5- Szymbark
- Zdjęcie 6- Szymbark
- Zdjęcie 7- Szymbark
12.2022
Spotkanie ws. realizacji projektu pt:
REWITALIZACJA ZABYTKOWEGO PARKU W FIJEWIE W ZAKRESIE : PRZEBUDOWA, ROZBUDOWA, NADBUDOWA, REMONT BUDYNKU ZAPLECZA REKREACYJNO-SPORTOWEGO, ODTWORZENIE ŚCIEŻEK , REMONT PŁYTY BOISKA PIŁKARSKIEGO Z INSTALACJĄ NAWODNIENIA I, INSTALACJA PLACU ZABAW DLA DZIECI Z ALTANĄ WYPOCZYNKOWĄ DLA ZWIEDZAJĄCYCH, ŚCIEŻKA EDUKACYJNA, OBIEKTY MAŁEJ ARCHITEKTURY, PRZEBUDOWA I ROZBUDOWA SCHODÓW WRAZ Z ARANŻACJĄ SKARPY W STREFIE WEJŚCIOWEJ PRZY BUDYNKU ZAPLECZA REKREACYJNO-SPORTOWEGO, PARKING DLA 2 AUTOKARÓW I OK. 15 MIEJSC PARKINGOWYCH DLA SAMOCHODÓW OSOBOWYCH , INSTALACJA SIŁOWNI ZEWNĘTRZNEJ ITP, MONITORING PARKU, LOKALIZACJA TRYBUN DLA 300 OSÓB WRAZ Z ZADASZONYMI ŁAWKAMI DLA PIŁKARZY REZERWOWYCH – DO 13 OSÓB KAŻDA; WYKONANIE PRAC ZWIĄZANYCH Z ISTNIEJĄCYM I PROJEKTOWANYM DRZEWOSTANEM – TERENEM BIOLOGICZNE CZYNNYM W ZAKRESIE WYCINKI I NASADZEŃ. PRZEBUDOWY FRAGMENTU SIECI WODOCIĄGOWEJ, INSTALACJI WODOCIĄGOWEJ Z ISTNIEJĄCEGO PRZYŁĄCZA , INSTALACJI KANALIZACJI SANITARNEJ Z ODPROWADZENIEM DO PROJEKTOWANEGO ZBIORNIKA BEZODPŁYWOWEGO NA NIECZYSTOŚCI CIEKŁE, INSTALACJI ELEKTRYCZNEJ ZALICZNIKOWEJ OŚWIETLENIA I MONITORINGU ORAZ ZASILENIA OBIEKTÓW BUDOWLANYCH W PARKU Z ISTNIEJĄCEGO UKŁADU POMIAROWEGO
Aktualnie obszar parku jest użytkowany w bardzo ograniczonym zakresie , natomiast jego stan techniczny uniemożliwia regularne organizowanie wydarzeń z dziedziny sportu i kultury. Budynek zlokalizowany w parku, przewidziany do przebudowy i rozbudowy , aktualnie nie jest użytkowany w sposób ciągły , również z uwagi na niesatysfakcjonujący stan techniczny
Spotkanie dotyczy omówienia zakresu projektu na podstawie posiadanej mapy oraz ponownej wizji lokalnej a następnie przedstawienia wstępnego kierunku zmian wizualnych istniejącego budynku po planowanej przebudowie i koniecznej rozbudowie na podstawie wstępnej formy graficznej.
- Zdjęcie 1- stan istn.
- Zdjęcie 2- stan istn.
- Zdjęcie 3- stan istn.
- Mapa- stan istn.
- Propozycja -1 forma wizualna
INFORMACJA O PODJĘCIU WSPÓŁPRACY Z KMK ARCHITEKCI
Po ponad 15 latach nieprzerwanego prowadzenia działalności, Pracownia Projektowa arch. Radosław Przybylak podejmuje stałą współpracę z pracownią KMK ARCHITEKCI arch. Iwona Malinowska- Klimek. Od roku 2022, obie pracownie posiadające bogate , wieloletnie doświadczenie zawodowe , rozpoczęły wspólną realizację dokumentacji projektowych.
Podjęta decyzja o stałej współpracy podyktowana jest potrzebą poszerzenia zakresu oraz zasięgu proponowanych usług, stanowiących profil działalności charakteryzujący obie pracownie. Korzystając z wzajemnego,bogatego doświadczenia i potencjału , przy jednoczesnej zbieżności zainteresowań dotyczących problematyki projektowej , skupiających się w szczególności na zagadnieniach z dziedziny użyteczności publicznej , zamieszkania zbiorowego , opieki zdrowotnej i obiektów sakralnych, oba podmioty łączą wypracowany przez lata bagaż doświadczeń oraz zasobów , proponując ofertę współpracy , opisanej poniżej
W ramach pełnionego zakresu usług realizujemy wszelkie kwalifikowane obiekty budowlane , w tym w szczególności :
-
MIESZKALNE JEDNORODZINNE W TYM W FORMIE ZABUDOWY WOLNOSTOJĄCEJ , BLIŹNIACZEJ, SZEREGOWEJ , A TAKŻE W ZABUDOWIE ZAGRODOWEJ
-
MIESZKALNE WIELORODZINNE
-
DOMKI LETNISKOWE W TYM BUDOWANE W TECHNOLOGII TRADYCYJNEJ- Z DREWNA(DOMY Z BALA, DOMU O KONSTRUKCJI SZKIELETOWEJ-ŚCIANY RYGLOWEJ)
-
GOSPODARCZE I GARAŻOWE
-
USŁUGOWE (NP. BIUROWE , ADMINISTRACYJNEJ )
-
SPORTOWE ( HALE , SALE GIMNASTYCZNE , BOISKA , STADIONY )
-
SZKOLNE
-
MAGAZYNOWE
-
PRZEMYSŁOWE
-
ZWIĄZANE Z REKREACJĄ (PENSJONATY /HOTELE ITP.)
-
OBIEKTY ARCHITEKTURY SAKRALNEJ
-
OBIEKTY MAŁEJ ARCHITEKTURY
W ZAKRESIE POWYŻSZYM REALIZUJEMY WSZELKIE ZADANIA W PROCESIE INWESTYCYJNYM , W TYM W SZCZEGÓLNOŚCI :
-
ANALIZY MOŻLIWOŚCI ZABUDOWY DLA DZIAŁEK I PLANOWANYCH NA NICH INWESTYCJI
-
SPORZĄDZANIE WNIOSKÓW O WYDANIE DECYZJI O WARUNKACH ZABUDOWY I ZAGOSPODAROWANIA TERENU
-
DORADZTWO TECHNICZNE W SPRAWIE INWESTYCJI BUDOWLANYCH/KUPNA PROJEKTÓW POWTARZALNYCH
-
INWENTARYZACJE WSZYSTKICH RODZAJÓW OBIEKTÓW BUDOWLANYCH.
-
ADAPTACJE DO WARUNKÓW MIEJSCOWYCH WSZYSTKICH PROJEKTÓW POWTARZALNYCH.
-
KONCEPCJE ARCHITEKTONICZNE I WIELOBRANŻOWE
-
PROJEKTY BUDOWLANE W ZAKRESIE PROJEKT ZAGOSPODAROWANIA TERENU , PROJEKT ARCHITEKTONICZNO- BUDOWLANY I KONIECZNE DOKUMENTY I UZGODNIENIA ORAZ PROJEKTY TECHNICZNE
-
PROJEKTY WYKONAWCZE
-
PROJEKTY POWYKONAWCZE , SPRAWDZANIE PROJEKTÓW ORAZ PROJEKTY I OPRACOWANIA ZAMIENNE KONIECZNE DO ZAKOŃCZENIA BUDOWY- PRZY ZMIANACH ISTOTNYCH .
-
WIZUALIZACJE OBIEKTÓW
-
REMONTY ELEWACJI
-
REMONTY , PRZEBUDOWY , ROZBUDOWY I ODBUDOWY OBIEKTÓW BUDOWLANYCH
-
TERMOMODERNIZACJE OBIEKTÓW,
-
PROJEKTOWANE CHARAKTERYSTYKI ENERGETYCZNE I ŚWIADECTWA CHARAKTERYSTYKI ENERGETYCZNEJ
-
ZAGOSPODAROWANIE DZIAŁEK BUDOWLANYCH
-
ARANŻACJA WNĘTRZ
-
ARANŻACJA ZIELENI
-
KOSZTORYSY I PRZEDMIARY
-
SPECYFIKACJE
-
PROWADZENIE NADZORU AUTORSKIEGO , W ŚCISŁEJ WSPÓŁPRACY Z WYKONAWCĄ DO ZAKOŃCZENIA BUDOWY, A W RAZIE POTRZEBY, POMOC W ZNALEZIENIU I NAWIĄZANIU WSPÓŁPRACY Z WYKONAWCĄ I OSOBĄ PEŁNIĄCĄ NADZÓR INWESTORSKI.
-
PRZYGOTOWANIE MATERIAŁÓW GRAFICZNYCH I WIZUALNYCH WSPOMAGAJĄCYCH SPRZEDAŻ DZIAŁEK
Dużym zainteresowaniem i pasją darzymy tematy związane z obiektami historycznymi, podlegającymi różnym formom ochrony- konserwacji zabytków , począwszy od obiektów małej architektury , przez obiekty o różnym przeznaczeniu użytkowym a skończywszy na założeniach folwarcznych , dworskich czy parkowych . Już na dzień dzisiejszy możemy pochwalić się wieloletnim doświadczeniem w zakresie realizacji usług w procesie inwestycyjnym związanym z terenami i obiektami wpisanymi do rejestru zabytków, ewidencji gminnych i wojewódzkich a także ujętych w obszary i układy przestrzenne ochrony konserwatorskiej czy archeologicznej . Mamy, zamiar nadal sukcesywnie rozwijać ten zakres działalności.
|
KMK ARCHITEKCI Iwona Malinowska-Klimek Naglady, ul. Śródleśna 16, 11-036 Gietrzwałd NIP: 582 124 53 89, tel: 605-663-346 |
PRACOWNIA PROJEKTOWA arch. RADOSŁAW PRZYBYLAK ul. Pana Tadeusza 7/10, 10-460 Olsztyn NIP: 739-327-22-58, tel: 696-828-499 |
12.2022
Ostatnie spotkanie w ramach narad budowy na terenie realizacji projektu Przebudowy wraz z remontem budynku Nadleśnictwa Wichrowo – stanowiąca weryfikację budynku przed oficjalnym odbiorem budynku, zakończeniem budowy i pozwoleniem na użytkowanie.
- zdjęcie 1 z budowy- Wichrowo
- zdjęcie 2 z budowy- Wichrowo
- zdjęcie 3 z budowy- Wichrowo
- zdjęcie 4 z budowy- Wichrowo
- zdjęcie 5 z budowy- Wichrowo
- zdjęcie 6 z budowy- Wichrowo
- zdjęcie 7 z budowy- Wichrowo
- zdjęcie 8 z budowy- Wichrowo
- zdjęcie 9 z budowy- Wichrowo
- zdjęcie 10 z budowy- Wichrowo
- zdjęcie 11 z budowy- Wichrowo
- zdjęcie 12 z budowy- Wichrowo
- zdjęcie 13 z budowy- Wichrowo
- zdjęcie 14 z budowy- Wichrowo
09-11 .2022
Wizyty dnia 6 i 9 września ,13 października oraz 4 listopada 2022 roku w ramach pełnionego nadzoru autorskiego dla realizacji Inwestycji „BUDOWA BUDYNKU MIESZKALNEGO JEDNORODZINNEGO W BOTOWIE , GMINA BISKUPIEC”. Wizyta związana z etapem : wylanie fundamentów, wyprowadzenie ścian podziemia i wylanie parteru i rozpoczęcie murowania ścian parteru”
- Zdjęcie z budowy 1- Botowo
- Zdjęcie z budowy 2- Botowo
- Zdjęcie z budowy 3- Botowo
- Zdjęcie z budowy 4- Botowo
- Zdjęcie z budowy 5- Botowo
09.2022
Kolejna wizyta na terenie budowy – remontu i wymiany pokrycia , poszycia i konstrukcji dachu budynku mieszkalnego wielorodzinnego zlokalizowanego przy ul. Kościuszki w Biskupcu
- zdjęcie 1- wizyta 2
- zdjęcie 2- wizyta 2
- zdjęcie 3- wizyta 2
- zdjęcie 4- wizyta 2
- zdjęcie 5- wizyta 2
- zdjęcie 6- wizyta 2
- zdjęcie 7- wizyta 2
- zdjęcie 8- wizyta 2
- zdjęcie 9- wizyta 2
- zdjęcie 10- wizyta 2
- zdjęcie 11- wizyta 2
- zdjęcie 12- wizyta 2
- zdjęcie 13- wizyta 2
- zdjęcie 14- wizyta 2
08.2022
Wizyta na terenie budowy – remontu i wymiany pokrycia , poszycia i konstrukcji dachu budynku mieszkalnego wielorodzinnego zlokalizowanego przy ul. Kościuszki w Biskupcu
- zdjęcie 1
- zdjęcie 2
- zdjęcie 3
- zdjęcie 4
- zdjęcie 5
- zdjęcie 6
- zdjęcie 7
- zdjęcie 8
- zdjęcie 9
- zdjęcie 10
- zdjęcie 11
- zdjęcie 12
06.2022
Złożenie wraz z wnioskiem i zgłoszeniem przyłączy, projektu budowlanego zakończone uzyskaniem DECYZJI O POZWOLENIU NA BUDOWĘ dla inwestycji pt. PROJEKT BUDOWLANY BUDYNKU MIESZKALNEGO JEDNORODZINNEGO WRAZ Z TOWARZYSZĄCA INFRASTRUKTURĄ TECHNICZNĄ W TYM: PRZYŁĄCZE KANALIZACJI SANITARNEJ DO PROJEKTOWANEGO ZBIORNIKA BEZODPŁYWOWEGO NA NIECZYSTOŚCI CIEKŁE ,INSTALACJI ELEKTRYCZNEJ ZALICZNIKOWEJ , POMPY CIEPŁA POWIETRZE -WODA ORAZ KOMUNIKACJI PIESZO JEZDNEJ WRAZ ZE ZJAZDEM INDYWIDUALNYM, W MIEJSCOWOŚCI BOTOWO, GMINA BISKUPIEC
Projekt realizowany na przełomie roku 2021/2022 , poniżej przedstawiono kolejne fazy realizacji koncepcji wizualnej obiektu :
faza 1 – wstępna idea budynku – założenia inwestora dotyczące formy zabudowy ujęte w wykonanej makiecie, oraz propozycja zmiany planowanego obszernego zadaszenia o małym kącie spadku w balkon- taras dostępny z poziomu poddasza , stanowiący nadal zadaszenie dla tarasu na poziomie parteru, zawarta szkicach odręcznych.
- model- widok 1
- model- widok 2
- model- widok 3
- model- widok 4
- model- widok 5
- model- widok 6- układ wnętrza
- szkic 1
- szkic 2
faza 2 – pierwsza wersja koncepcji wizualnej budynku, stanowiąca połączenie bryły z dachem dwuspadowym i bryły balkonowo -tarasowej. Współczesna bryła bogata w obszerne przeszklenia na poziomie obu kondygnacji , z nawiązaniami do budynków zlokalizowanej opodal tradycyjnej zabudowy zagrodowej.
- widok 1-Botowo
- widok 2-Botowo
- widok 3-Botowo
- widok 4-Botowo
- widok 5-Botowo
- widok 6-Botowo
- widok 7-Botowo
- widok 8-Botowo
- widok 9-Botowo
- widok 10-Botowo
- widok 11-Botowo
- widok 12-Botowo
faza 3- ostateczna koncepcja uwzględniająca głównie zmiany w układzie przeszklenia połaci dachu i podparcia nadwieszonego balkonu – tarasu
- widok 1 – nowa konc.Botowo
- widok 2 – nowa konc.Botowo
- widok 3 – nowa konc.Botowo
- widok 4 – nowa konc.Botowo
- widok 5 – nowa konc.Botowo
- widok 6- nowa konc.Botowo
- widok 7 – nowa konc.Botowo
- widok 8 – nowa konc.Botowo
- widok 9- nowa konc.Botowo
- widok 10 – nowa konc.Botowo
- widok 11 – nowa konc.Botowo
- widok 12 – nowa konc.Botowo
- widok 13 – nowa konc.Botowo
- widok 14 – nowa konc.Botowo
- widok 15 – nowa konc.Botowo
- widok 16 – nowa konc.Botowo
W efekcie powstał projekt obejmujący realizację budynku dwukondygnacyjnego , niepodpiwniczonego , z czego główny zakres funkcjonalny zawarto na parterze budynku , zaś poddasze stanowi przedzieloną na dwie części otwartą przestrzeń pod przyszłą aranżację .
Budynek przewidziany został do realizacji w dwóch, przenikających się wzajemnie etapach . Etap 1- to realizacja stanu surowego oraz wykończenia zewnętrznego budynku na podstawie projektu uzupełnianego o rozwiązania wykonawcze w trakcie powstawania budynku . Etap 2- realizacja wnętrz, na podstawie koncepcji. aranżacji wnętrz oraz wstępnej koncepcji i kreacji wizualnej przestrzeni poddasza pod przyszłą aranżację wnętrza tej kondygnacji- powstałe w trakcie powstawania budynku. Realizacja odbywać się będzie pod stałym nadzorem autorskim we współpracy z wykonawcą.
04.2022
Ostateczna koncepcja formy wizualnej budynku mieszkalnego jednorodzinnego planowanego do realizacji w miejscowości Ruś
- ELEWACJA 1
- ELEWACJA 2
- ELEWACJA 3
- ELEWACJA 4
- WIDOK 1
- WIDOK 2
- WIDOK 3
- WIDOK 4
03.2022
Inwentaryzacja konserwatorska oraz wymiana skrzydła wewnętrznego istniejącej stolarki okiennej budynku Nadleśnictwa Wichrowo, jako opracowanie zamienne -uzupełniające do projektu Przebudowy wraz z remontem budynku Nadleśnictwa.
- zdjęcie zewn. stan istn. 1
- zdjęcie zewn. stan istn. 2
- zdjęcie wewn. stan istn. 1
- zdjęcie wewn. stan istn. 2
- zdjęcie wewn. stan istn. 3
- rys. inwentaryzacji 1
- rys. inwentaryzacji 2
- rys. inwentaryzacji 3
- rys. inwentaryzacji 4
- skrzydło istniejące
- skrzydło wykonane wg.proj.
- porównanie skrzydeł
- detal wg. proj. 1
- detal wg. proj. 2
- detal wg. proj. 3
08.2021
Ostatnie zmiany do Koncepcji formy wizualnej budynku mieszkalnego jednorodzinnego projektowanego w miejscowości Biskupiec, między ulicami Stanisława Moniuszki i Fryderyka Chopina z ciągu zabudowy szeregowej- pierzei według wykonanego na podstawie badań i programu prac konserwatorskich.
- widok od ul.Chopina 1
- widok od ul.Chopina 2
- widok od ul.Chopina 3
- widok od ul.Chopina 4
- widok od ul.Chopina 5
- elewacja proj.od ul.Chopina
- elewacja proj.od ul.Moniuszki
06.2021
Koncepcja formy wizualnej budynku mieszkalnego w dwóch wersjach geometrii dachu – dwuspadowego i kopertowego oraz dwóch wersjach kolorystycznych pokrycia dachówką
.Koncepcja dotyczy budynku mieszkalnego jednorodzinnego projektowanego w miejscowości Szczęsne w 3 wersjach formy wizualnej ze zmianą zadaszenia na wielospadowe – kopertowe i dwuspadowe a także z pokryciem w kolorystyce naturalnej ceramiki oraz docelowym – ciemnej szarości .
- wersja 1-1
- wersja 1-2
- wersja 2-1
- wersja 2-2
- wersja 3-1
- wersja 3-2
- wersja 3-3
- wersja 3-4
04.2021
Zdjęcia z wizyty na terenie budowy wg. Projektu Budowlanego REMONTU, PRZEBUDOWY I ROZBUDOWY BUDYNKU MIESZKALNEGO JEDNORODZINNEGO WOLNOSTOJĄCEGO, W OBRĘBIE BISKUPIEC KOLONIA PIERWSZA NR 3, GMINA BISKUPIEC. Na zdjęciach widoczne zmiany w fasadzie frontowej a także bocznej- szczytowej budynku.
- Zdjęcie ralizacji 1
- Zdjęcie ralizacji 2
- Zdjęcie ralizacji 3
- Zdjęcie ralizacji 4
03.2021
Zdjęcia z realizacji prowadzonych w okolicach Biskupca , w tym prac wykonywanych aktualnie na fasadzie frontowej – kolejnej z przewidzianych do remontu elewacji budynku mieszkalno – usługowego, zamykającego ciąg zabudowy pierzejowej wzdłuż ul.1 Maja w Biskupcu .
- Bud. jednorodz. w realizacji
- fragmant realizacji bud. 1
- fragmant realizacji bud. 2
- Bud. mieszk- usług.- ul.1 Maja
12.2020
Zakończony Pozwoleniem na Budowę z dnia 1.12.2020 r., na podstawie pozytywnej opinii Wojewódzkiego Konserwatora Zabytków , Projekt Budowlany REMONTU POSZYCIA, POKRYCIA DACHU I WIĘŹBY DACHOWEJ BUDYNKU MIESZKALNEGO WIELORODZINNEGO PRZY ULICY TADEUSZA KOŚCIUSZKI W BISKUPCU.
- Elewacja Południowa
- Elewacja Północna
- Elewacja Wschodnia
- Elewacja Zachodnia
- widok 1- remont dachu
- widok 2- remont dachu
- widok 3- remont dachu
11.2020
Zdjęcia z realizacji ,zakończonego Pozwoleniem Wojewódzkiego Konserwatora Zabytków i Pozwoleniem na Budowę , Projektu Budowlanego Remontu i kolorystyki budynku mieszkalno – usługowego zamykającego ciąg zabudowy pierzejowej wzdłuż ul.1 Maja w Biskupcu
- ELEWACJA FRONTOWA -PROJ.
- ELEWACJA SZCZYTOWA -PROJ.
- ELEWACJA TYLNA -PROJ.
- STAN PRZED REMONTEM
- Zdjęcie z etapu realizacji 1
- Zdjęcie z etapu realizacji 2
- Zdjęcie z etapu realizacji 3
- Zdjęcie z etapu realizacji 4
10.2020
Przekazane przez Kierownika budowy zdjęcia z etapu realizacji budowy dla inwestycji : Przebudowa ,rozbudowa i zmiana sposobu użytkowania jednego z lokali budynku mieszkalnego jednorodzinnego z dwoma lokalami mieszkalnymi, w miejscowości Pajtuny, gmina Stawiguda.
- Zdjęcie z etapu realizacji 1
- Zdjęcie z etapu realizacji 2
- Zdjęcie z etapu realizacji 3
09.2020
Na podstawie WYNIKÓW BADAŃ ARCHEOLOGICZNYCH, DOKUMENTACJI GEOTECHNICZNEJ , MAPY ORAZ BADAŃ KONSERWATORSKICH WRAZ Z OPISEM STANU ZACHOWANIA I PROGRAMEM PRAC KONSERWATORSKICH, z uwzględnieniem Zaleceń, wydanych przez Wojewódzkiego Konserwatora Zabytków dnia 19.12.2019 r., powstała koncepcja uzupełniająca remontu, przebudowy i rozbudowy ostatniego z budynków mieszkalno- usługowych, kończącego zabudowę pierzejową między ul. Moniuszki i ul.Chopina w Biskupcu. Ostatecznie w odpowiedzi na przedstawioną koncepcję ,Wojewódzki Konserwator Zabytków dnia 9.11.2020 r. wydał pismo , w którym nie wniósł uwag do przedstawionego w w/w koncepcji, zamierzenia budowlanego.
- KONCEPCJA 2 -widok FRONT 1
- KONCEPCJA 2 -widok FRONT 2
- KONCEPCJA 2 -widok TYŁ 1
- KONCEPCJA 2 -widok TYŁ 2
- KONCEPCJA 2 -widok TYŁ 3
- KONCEPCJA 2 -widok TYŁ 4
08.2020
Zakończony Pozwoleniem Wojewódzkiego Konserwatora Zabytków i Pozwoleniem na Budowę z dnia 28.07.2020 r. , Projekt Budowlany i Wykonawczy PRZEBUDOWY Z REMONTEM BUDYNKU BIUROWEGO NADLEŚNICTWA WICHROWO WRAZ Z ZAGOSPODAROWANIEM TERENU
- Elewacja frontowa
06.2020
Relacja fotograficzna z kolejnego etapu budowy indywidualnego , parterowego budynku mieszkalnego jednorodzinnego , realizowanego w miejscowości Ostrzeszewo . Etap polegający na wykonaniu pokrycia dachu oraz dalszych prac wykończeniowych elewacji .
- Zdjęcie z etapu realizacji 5
- Zdjęcie z etapu realizacji 4
- Zdjęcie z etapu realizacji 3
- Zdjęcie z etapu realizacji 2
- Zdjęcie z etapu realizacji 1
05.2020
Przedstawiona na zdjęciach stanu istniejącego, forma wizualna struktury na elewacji ogrodowej budynku jednorodzinnego w miejscowości Szczęsne, która po rozwieszeniu tkaniny ma stanowić osłonę przed słońcem- rodzaj zadaszenia tarasu na okres wiosny-lata . Obok zamieszczono, otrzymane od właściciela budynku zdjęcia z realizacji struktury.
- widok do tarasu-stan istn.
- widok-Propozycja tarasu 1
- widok-Propozycja tarasu 2
- zdjęcie po realizacji 1
- zdjęcie po realizacji 2
05.2020
W miesiącu Maju 2020 r. zakończony Pozwoleniem na Budowę został Projekt Budowlany REMONTU, PRZEBUDOWY I ROZBUDOWY BUDYNKU MIESZKALNEGO JEDNORODZINNEGO WOLNOSTOJĄCEGO WRAZ Z NIEZBĘDNĄ INFRASTRUKTURĄ TECHNICZNĄ, W OBRĘBIE BISKUPIEC KOLONIA PIERWSZA NR 3, GMINA BISKUPIEC. W załączeniu forma wizualna budynku po planowanym zakresie prac budowlanych.
- ZDJĘCIE BUD. PROJ.1
- ZDJĘCIE BUD. PROJ.2
- ZDJĘCIE BUD. PROJ.3
- ZDJĘCIE BUD. PROJ.4
- 1. 1.ELEWACJA PŁD-WSCH -INW.
- 1. ELEWACJA PŁD-WSCH po zm.- KONC.
- 3. ELEWACJA PŁN-WSCH po zm.- KONC.
- 3.1. ELEWACJA PŁN-WSCH -INW.
- 4. 1. ELEWACJA PŁN-ZACH -INW.
- 4. ELEWACJA PŁN-ZACH po zm.- KONC.
04.2020
Ostateczna wersja formy wizualnej do koncepcji budynku mieszkalnego jednorodzinnego w obrębie Jeziorany Kolonie, Gmina Jeziorany
- 1. ELEWACJA PŁD.-ZACH.
- 2. ELEWACJA PŁD.-WSCH.
- 3. ELEWACJA PŁN.-ZACH.
- 4. ELEWACJA PŁN.-WSCH.
03.2020
Dnia 19.03.2020 r. Projekt Budowlany PRZEBUDOWY Z REMONTEM BUDYNKU BIUROWEGO NADLEŚNICTWA WICHROWO WRAZ Z ZAGOSPODAROWANIEM TERENU uzyskał Pozwolenie Wojewódzkiego Konserwatora Zabytków. W tym samym czasie rozpoczęto przygotowanie do procesu realizacji pierwszego etapu inwestycji : Projektu Budowlanego DROGI I PLACÓW PRZY BUDYNKU BIUROWYM NADLEŚNICTWA WICHROWO-MIEJSCA POSTOJU WRAZ Z DROGĄ DOJAZDOWĄ
– INWESTYCJA ZWIĄZANA Z DZIAŁALNOŚCIĄ NADLEŚNICTWA , który uzyskał Pozwolenie na Budowę dnia 14.11.2019 r., poprzedzone Pozwoleniem Wojewódzkiego Konserwatora Zabytków z dnia 3.10.2019 r.
- Elewacja frontowa
03.2020
Koncepcja budynku mieszkalnego jednorodzinnego i budynku gospodarczego z wiatą w formie zabudowy zagrodowej w obrębie Giławy, Gmina Purda. Budynek mieszkalny jednorodzinny zaprojektowano, jako murowany z werandą wejściową w konstrukcji drewnianej szkieletowej, zaś gospodarczy w całości drewniany w konstrukcji szkieletowej .
- ELEWACJA FRONTOWA
- ELEWACJA BOCZNA 1
- ELEWACJA BOCZNA 2
- ELEWACJA TYLNA
- ELEWACJE-BUDYNEK GOSPODARCZY
01.2020
Zdjęcia z etapów budowy budynku mieszkalnego jednorodzinnego w Łęgajnach , gmina Barczewo, przekazane przez Kierownika budowy dnia 17.01.2019 r.
- Widok z realizacji 1
- Widok z realizacji 2
- Widok z realizacji 3
12.2019
Wstępna koncepcja remontu, przebudowy i rozbudowy ostatniego z budynków mieszkalno- usługowych, kończącego zabudowę pierzejową przy ul. Moniuszki w Biskupcu. Przedstawiona propozycja elewacji budynku po planowanej rozbudowie, w tym przedstawiona w zestawieniu z zabudową istniejącą w widoku od strony ul.Chopina.
- Widok od ul.Moniuszki 1
- Widok od ul.Moniuszki 2
- Widok od ul.Chopina 1
- Widok od ul.Chopina 2
11.2019
Forma wizualna nowo projektowanego budynku mieszkalnego jednorodzinnego w miejscowości Myki , gmina Dywity
- WIDOK 1-taras
- WIDOK 2-taras
- WIDOK 3-wejście
- WIDOK 4-wejście
- WIDOK 5-front
- WIDOK 6-front
24.10.2019
Dokumentacja fotograficzna ostatecznie ukończonej elewacji od strony podwórza budynku wielorodzinnego przy ul. Syreny w Biskupcu, uzupełniającej ciąg istniejącej zabudowy pierzei przy tej ulicy
- WIDOK ELEWACJI 1
- WIDOK ELEWACJI 2
- WIDOK ELEWACJI 3
- WIDOK ELEWACJI 4
- WIDOK ELEWACJI 5
- WIDOK ELEWACJI 6
08.2019
Wizyta na istniejącym budynku mieszkalnym w ramach aktualnie wykonywanego projektu jego przebudowy oraz pobliskiej realizacji nowopowstałego budynku mieszkalnego w Biskupcu, na etapie wzniesionych ścian parteru.
- ZDJĘCIE BUD. PROJ.1
- ZDJĘCIE BUD. PROJ.2
- ZDJĘCIE BUD. PROJ.3
- ZDJĘCIE BUD. PROJ.4
- ZDJĘCIE RALIZACJI 1
- ZDJĘCIE RALIZACJI 2
07.08.2019
Zdjęcia zakończonej realizacji remontu i kolorystyki kolejnej z kamienic- budynku mieszkalno- usługowego w ciągu pierzei między ulicami Moniuszki i Chopina w Biskupcu. Zdjęcia od strony ul.Chopina.
- Zdjęcie od ul.Chopina.1 1
- Zdjęcie od ul.Chopina. 2
07.2019
Projekt przebudowy i rozbudowy budynku mieszkalnego jednorodzinnego w miejscowości Chmielówka, gmina Biskupiec . W zakresie przebudowy i rozbudowy przewidziano przede wszystkim przebudowę na poziomie poddasza, docieplenie, oraz rozbudowę o oranżerię, pokój nad częścią parterową oraz lukarnę w pomieszczenie łazienki i zadaszenie nad wejściem.Poniżej zdjęcia stanu istniejącego
- ZDJĘCIE STANU ISTN. 1
- ZDJĘCIE STANU ISTN. 2
- ZDJĘCIE STANU ISTN. 3
- ZDJĘCIE STANU ISTN. 4
oraz forma wizualna budynku po planowanych zmianach
- WIDOK 1
- WIDOK 2
- WIDOK 3
- WIDOK 4
- WIDOK 5
- WIDOK 6
- WIDOK 7
- WIDOK 8
06.2019
Koncepcja przebudowy ,rozbudowy i zmiany sposobu użytkowania jednego z lokali budynku mieszkalnego jednorodzinnego z dwoma lokalami mieszkalnymi, wraz z formą wizualna, w miejscowości Pajtuny, gmina Stawiguda. W części graficznej poniżej ujęto stan istniejący, przez wstępna koncepcję w formie szkicu , aż po wersję ostatecznie zaakceptowaną przez inwestora.
- ZDJĘCIE ISTN. 1
- ZDJĘCIE ISTN. 1
- SZKIC ROZBUDOWY
- WIDOK 1
- WIDOK 2
- WIDOK 3
06.2019
Relacja fotograficzna z pobytu na budowie indywidualnego , parterowego budynku mieszkalnego jednorodzinnego , realizowanego w miejscowości Kobułty . Etap realizacji to wymurowanie ścian parteru z osadzeniem nadproży oraz podciągów i słupa, a także częściowy rozstaw belek stropu .
- ZDJĘCIE Z REALIZACJI 1
- ZDJĘCIE Z REALIZACJI 2
- ZDJĘCIE Z REALIZACJI 3
- ZDJĘCIE Z REALIZACJI 4
- ZDJĘCIE Z REALIZACJI 5
- ZDJĘCIE Z REALIZACJI 6
- ZDJĘCIE Z REALIZACJI 7
- ZDJĘCIE Z REALIZACJI 8
- ZDJĘCIE Z REALIZACJI 9
- ZDJĘCIE Z REALIZACJI 10
- ZDJĘCIE Z REALIZACJI 11
- ZDJĘCIE Z REALIZACJI 12
- ZDJĘCIE Z REALIZACJI 13
- ZDJĘCIE Z REALIZACJI 14
- ZDJĘCIE Z REALIZACJI 15
- ZDJĘCIE Z REALIZACJI 16
05.2019
Zakończony Pozwoleniem Wojewódzkiego Konserwatora Zabytków i Pozwoleniem na Budowę, Projekt Budowlany Remontu i kolorystyki elewacji frontowej budynku usługowego- Banku, pełniącego niegdyś funkcję Ratusza w Biskupcu. Budynek wybudowany w roku 1895 r, zamykającego ciąg zabudowy pierzejowej wzdłuż ul. Pionierów i Floriańskiej w Biskupcu – inwestycja przewidziana do realizacji. Dla porównania zdjęcie z 1934 r. , aktualne i forma wizualna ujęta w projekcie wykonanym na podstawie programu prac oraz badaniach struktur tynków i okładzin przedmiotowej elewacji.
- ELEWACJA FRONTOWA – zdjęcie z 1934 r.
- ELEWACJA FRONTOWA – stan istniejący
- ELEWACJA FRONTOWA – wg. projektu
- ELEWACJA FRONTOWA-fragment wg. projektu
05.2019
Relacja fotograficzna z pobytu na terenie realizacji inwestycji – po zrealizowanym etapie rozbudowy części magazynowej oraz połączeń komunikacyjnych z częścią istniejącą Stacji Kontroli Pojazdów w Dobrym Mieście.
- ZDJĘCIE PO ROZBUDOWIE 1
- ZDJĘCIE PO ROZBUDOWIE 2
- ZDJĘCIE PO ROZBUDOWIE 3
- ZDJĘCIE PO ROZBUDOWIE 4
- ZDJĘCIE PO ROZBUDOWIE 5
- ZDJĘCIE PO ROZBUDOWIE 6
- ZDJĘCIE PO ROZBUDOWIE 7
- ZDJĘCIE PO ROZBUDOWIE 8
- ZDJĘCIE PO ROZBUDOWIE 9
- ZDJĘCIE PO ROZBUDOWIE 10
04.2019
Relacja fotograficzna z pobytu na budowie indywidualnego , parterowego budynku mieszkalnego jednorodzinnego , realizowanego w miejscowości Ostrzeszewo . Etap realizacji to zamykanie stanu surowego , z poszyciem , przed pokryciem dachu.
- Zdjęcie z etapu realizacji 5
- Zdjęcie z etapu realizacji 4
- Zdjęcie z etapu realizacji 3
- Zdjęcie z etapu realizacji 2
- Zdjęcie z etapu realizacji 1
03.2019
Wstępna koncepcja formy wizualnej budynku mieszkalnego jednorodzinnego z dwoma lokalami mieszkalnymi po planowanej rozbudowie w miejscowości Podleśna, Gmina Dobre Miasto
- ZDJĘCIE STANU ISTNIEJĄCEGO
- ELEWACJA PO ROZBUDOWIE -Podleśna
01.2019
Zakończony Pozwoleniem na Budowę z uzgodnieniem Wojewódzkiego Konserwatora Zabytków , Projekt Budowlany Remontu i kolorystyki budynku mieszkalno – usługowego, zamykającego ciąg zabudowy pierzejowej wzdłuż ul.1 Maja w Biskupcu – inwestycja przewidziana do realizacji.
- ZDJĘCIE STANU ISTN. 1
- El.1.-frontowa
- El.2.-boczna
- ZDJĘCIE STANU ISTN. 2
- El.3.-tylna
12.2018
Koncepcja Remontu Budynku Biurowego – Remont i przebudowa wraz z remontem elewacji budynku w Gminie Dobre Miasto
- ZDJĘCIE STANU ISTNIEJĄCEGO
- ZDJĘCIE STANU ISTNIEJĄCEGO (2)
- El. ZACH.DO KONCEPCJI REMONTU
- El. PŁD. DO KONCEPCJI REMONTU
5.11.18
Porównawcze zestawienie widoku od strony ul. Syreny przedstawiającego formę wizualną zawartą w projekcie budynku wielorodzinnego z jednym z ostatnio zamieszczonych zdjęć realizacji budynku , w podobnym ujęciu tej fasady.
- Forma wizualna wg.projektu
- zdjęcie realizacji
14.10.18
Kolejny etap budowy budynku mieszkalnego wielorodzinnego w formie zabudowy plomby w pierzei przy ul. Syreny w Biskupcu
- ZDJĘCIE REALIZACJI OD STRONY PODWÓRZA
- ZDJĘCIE REALIZACJI OD UL.SYRENY 1
- ZDJĘCIE REALIZACJI OD UL.SYRENY 2
- ZDJĘCIE REALIZACJI OD UL.SYRENY 3
- ZDJĘCIE REALIZACJI OD UL.SYRENY 5
8.10.18
Kolejna koncepcja budynku mieszkalnego jednorodzinnego , tym razem w okolicach Barczewa
- ELEWACJA FRONTOWA
- ELEWACJA OGRODOWA
- ELEWACJA BOCZNA-ZACH.
- ELEWACJA BOCZNA-WSCH.
23.05.18
Kolejny etap budowy budynku mieszkalnego wielorodzinnego w formie zabudowy plomby w pierzei przy ul. Syreny w Biskupcu.
- WIDOK OD STRONY PODWÓRZA 01
- WIDOK OD STRONY PODWÓRZA 02
- WIDOK OD STRONY PODWÓRZA 03
10.03.18
Koncepcja nowoprojektowanego domu mieszkalnego jednorodzinnego z garażem dwustanowiskowym w bryle budynku
- ELEWACJA FRONTOWA
- ELEWACJA TYLNA
- WIDOK OD FRONTU
- WIDOK OD FORNTU -2 wersja
- WIDOK OD PODWÓRZA
- WIDOK OD PODWÓRZA -2 wersja
- WIDOK OD PODWÓRZA 2
- WIDOK OD PODWÓRZA 2- 2 wersja
14.12.17
Propozycja formy wizualnej nowoprojektowanego remontu, przebudowy i rozbudowy budynku mieszkalnego jednorodzinnego .
- ELEWACJA OD STRONY WEJŚCIA – stan istniejący
- ELEWACJA OD STRONY WEJŚCIA – propozycja wizualna 1
- ELEWACJA OD STRONY WEJŚCIA – propozycja wizualna 2
- ELEWACJA OD STRONY WEJŚCIA – propozycja wizualna 3
- ELEWACJA OD STRONY DROGI – stan istniejący
- ELEWACJA OD STRONY DROGI – propozycja wizualna 1
- ELEWACJA OD STRONY DROGI – propozycja wizualna 2
- ELEWACJA OD STRONY DROGI – propozycja wizualna 3
9.12.17
Zdjęcia kolejnej skończonej realizacji – remontu, docieplenia i kolorystyki budynku mieszkalno- usługowego na Placu Wolności 5B w miejscowości Biskupiec jako uzupełnienie remontowanej pierzei – w nawiązaniu do aktualizacji z dnia 23.09.2016
- Widok od str. Pl.Wolności 1
- Widok od str. Pl.Wolności 2
- Widok od str. Pl.Wolności 3
- Widok od str. ul.Bogusławskiego 1
- Widok od str. ul.Bogusławskiego 2
- Widok od str. ul.Bogusławskiego 3
19.11.17
Wstępna propozycja formy wizualnej nowoprojektowanego budynku mieszkalnego jednorodzinnego
- Elewacja frontowa
- Szczyt od strony tarasu
- Widok frontu i szczytu tarasu
- Widok frontu i szczytu od strony tarasu
- Widok frontu i szczytu od strony tarasu
- Widok frontu i szczytu od strony tarasu
27.06.17
Relacja fotograficzna z pobytu na remontowanym budynku mieszkalnym wielorodzinnym w jej końcowym etapie realizacji . Można już zobaczyć wykonaną zgodnie z badaniami struktur tynków kolorystykę obiektu.
- Widok od strony ul.Ogrodowej
- Widok od strony ul.Ogrodowej
- Ostatnia remontowana elewacja
- Ostatnia remontowana elewacja
21.10.16
Zdjęcie realizacji – docieplenia remontu i kolorystyki elewacji przy ul. Moniuszki w Biskupcu
- Widok z okna poddasza budynku przy Pl.Wolności
23.09.2016
Koncepcja kolorystyki do projektu remontu i docieplenia budynku mieszkalno – usługowego w zabudowie pierzejowej w Biskupcu przy ul. Pl. Wolności 5B ( Pl. Wolności 5A i 5C zostały już zrealizowane). Koncepcja uzyskała Pozwolenie Wojewódzkiego Konserwatora Zabytków.
- WIDOK OD UL. BOGUSŁAWSKIEGO- widoczny fragment fasady 5A i 5C
- WIDOK OD UL. BOGUSŁAWSKIEGO
- KONCEPCJA KOLORYSTYKI OD UL.BOGUSŁAWSKIEGO
- WIDOK OD PL.WOLNOŚCI
- WIDOK OD UL. PL.WOLNOŚCI- widoczny fragment fasady 5A i 5C
- KONCEPCJA KOLORYSTYKI OD PL.WOLNOŚCI
23. 08.2016
Zdjęcia kolejnej skończonej realizacji – remontu, docieplenia i kolorystyki budynku mieszkalno- usługowego na Placu Wolności w miejscowości Biskupiec
- Wygląd po realizacji
- Widok od Pl.Wolności
- Widok od ul. Bogusławskiego
- Widok od ul. Bogusławskiego
- Wygląd po realizacji
07.07.2016
Relacja fotograficzna z pobytu na budowie po odbiorze i oddaniu do użytkowania rozbudowy hali magazynowej przedsiębiorstwa „POMAROL” w Biskupcu
- Widok elewacji
- Widok elewacji
- Widok wnętrza
- Widok wnętrza
- Widok wnętrza
16.06.2016
Propozycja formy wizualnej do koncepcji kładki pieszej i ruchu rowerowego przy moście z ruchem kołowym
- STAN ISTNIEJĄCY MOSTU
- KONCEPCJA WIZUALNA KŁADKI PRZY MOŚCIE
26.03.2016
Relacja fotograficzna z pobytu na budowie budynku mieszkalnego wielorodzinnego w formie zabudowy plomby w pierzei przy ul. Syreny w Biskupcu.
- WIDOK OD STRONY PODWÓRZA 1
- WIDOK OD STRONY PODWÓRZA 2
06.03.2016
Oficjalne oddanie do użytku sali gimnastycznej z łącznikiem przy kompleksie szkolnym w miejscowości Kolno. Poniżej relacja fotograficzna .
- Wygląd elewacji
- Wygląd wnętrza sali
- Wygląd korytarza wewnętrznego
- Wygląd wnętrza sali
- Wygląd sali na piętrze
- Wygląd wewnętrzny łącznika
- Wygląd elewacji z łącznikiem
05.12.2015
Propozycja formy wizualnej nowoprojektowanego budynku mieszkalnego jednorodzinnego z dwoma lokalami mieszkalnymi w jednej bryle.
17.09.2015
Relacja fotograficzna z pobytu na budowie rozbudowy hali magazynowej przedsiębiorstwa „POMAROL” w Biskupcu . Etap realizacji to ustawienie słupów nośnych zadaszenia i pod suwnice , wykonanie zadaszenia oraz mocowanie osłonowych płyt warstwowych nad wymurowaną częścią fasady.
- ZDJĘCIE WEWNĄTRZ HALI
- ZDJĘCIE WEWNĄTRZ HALI
- WYGLĄD FASADY
- ZDJĘCIE STANU ISTNIEJĄCEGO
- ZDJĘCIE STANU ISTNIEJĄCEGO (2)
- El. ZACH.DO KONCEPCJI REMONTU
- El. PŁD. DO KONCEPCJI REMONTU













































































































































































































































































































































































































































































































































































































































































